Te koop Appartement

Beschrijving van   

Vergelijk realty's

Te koop Appartement

Appartement Appartement Appartement Appartement Appartement Appartement Appartement Appartement Appartement Appartement
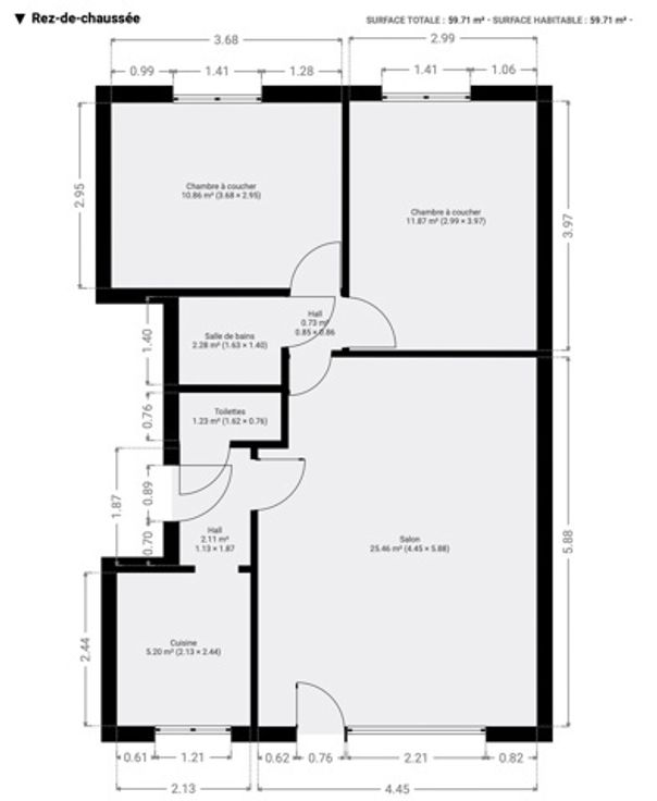
APPARTEMENT de +/- 71 m² situé au 1er ETAGE avec Ascenseur, proche de toutes les facilités composé comme suit : Hall d'entrée, 1 WC séparé, Cuisine semi-équipée, Séjour de +/- 25m², Hall de nuit desservant 2 Chambres (+/- 12m² et +/- 11m²) et une Salle de Bain. TERRASSE, CAVE et Emplacement PARKING . Châssis Double vitrage. Chauffage centrale au mazout (collectif). Faire offre à partir de 95.000€ sous réserve de l'acceptation des propriétaires. A ne pas manquer !!!
Type vastgoed Appartement
Prijs 95.000
Bewoonbare opp. 71
Aantal slaapkamers 2
Aantal badkamers 1