Te koop Huis

Beschrijving van   

Vergelijk realty's

Te koop Huis

Huis Huis Huis Huis Huis Huis Huis Huis Huis Huis
Renovatieplicht: nee
Type vastgoed Huis
Prijs 426.000
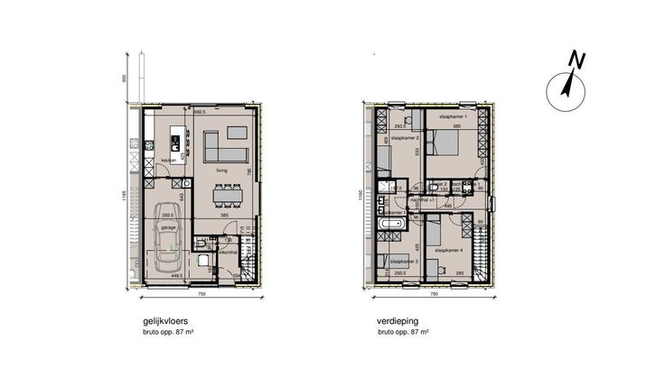
Bewoonbare opp. 174
Aantal slaapkamers 3
Aantal badkamers 1