Te koop Residentie SABLE D'OR

Beschrijving van   

Vergelijk realty's

Te koop Residentie SABLE D'OR

Residentie SABLE D'OR Residentie SABLE D'OR
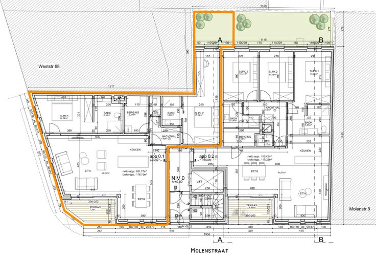
Residentie SABLE D'OR: een kwaliteitsvolle en duurzame thuis, vlakbij het strand!  INDELING APPARTEMENT 0001: Dit ruime appartement beschikt over een royale woonkamer met open keuken, die toegang biedt tot het zuidgericht leefterras. Er is een praktische berging voorzien en een apart toilet. Verder zijn er twee ruime slaapkamers met elk toegang tot een eigen badkamer en één kamer heeft toegang tot de tuin. In de kelder is er een privatieve berging voorzien. Daarnaast is er een gemeenschappelijke fietsenstalling en een vuilnislokaal aanwezig. Residentie Sable d’Or is een kleinschalig en energiezuinig nieuwbouwproject in hartje Blankenberge. De moderne architectuur en grote raampartijen zorgen voor open leefruimtes met veel daglicht. Omdat thuiskomen voor iedereen anders is, bieden we steeds een waaier aan mogelijkheden om de afwerking van uw nieuwe woonst te personaliseren. We vinden het belangrijk dat de stijl van uw appartement aansluit bij uw wensen en levensstijl. Standaard kunt u alvast rekenen op enkele mooie troeven: De vloerverwarming die de grote tegels of parket verwarmt, zorgt onmiddellijk voor een gevoel van luxe en comfort. Bovendien heeft elk appartement zonnepanelen en een eigen omvormer. De klassieke deurbel hebben we vervangen door een kleurenvideofoon. Uw warmtepomp schenkt u warm water en het ventilatiesysteem D zorgt voor een nog gezondere binnenlucht. Met de ruime lift kunt u ook naar de kelder. In de kelder is een ... Renovatieplicht: onbekend
Type vastgoed Appartement
Prijs 436.000
Bewoonbare opp. 116
Aantal slaapkamers 2
Aantal badkamers 2