Te koop PRACHTIG RUSTIG GELEGEN 6 HOB, IN HAM

Beschrijving van   

Vergelijk realty's

Te koop PRACHTIG RUSTIG GELEGEN 6 HOB, IN HAM

PRACHTIG RUSTIG GELEGEN 6 HOB, IN HAM PRACHTIG RUSTIG GELEGEN 6 HOB, IN HAM PRACHTIG RUSTIG GELEGEN 6 HOB, IN HAM PRACHTIG RUSTIG GELEGEN 6 HOB, IN HAM PRACHTIG RUSTIG GELEGEN 6 HOB, IN HAM PRACHTIG RUSTIG GELEGEN 6 HOB, IN HAM PRACHTIG RUSTIG GELEGEN 6 HOB, IN HAM PRACHTIG RUSTIG GELEGEN 6 HOB, IN HAM
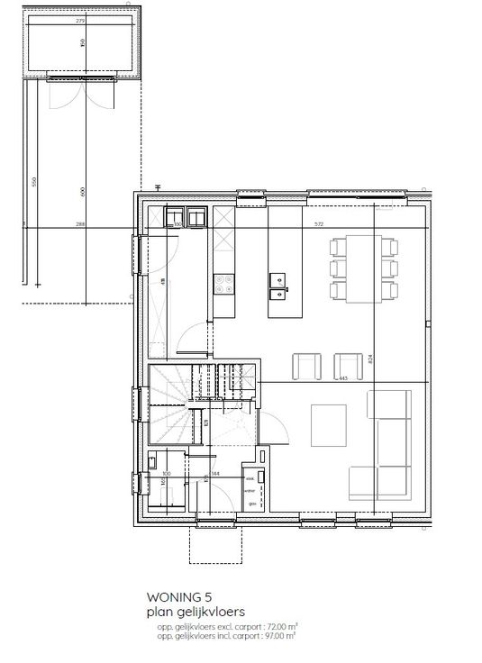
NOG 1 WONING TE KOOP! Op de Shermanstraat te Ham zullen weldra 6 stijlvolle half open wooneenheden gebouwd worden met een luxe afwerking, waar je de rust van de natuur, de vele fiets en wandel mogelijkheden kan combineren met de levendigheid van het centrum van Ham. Al deze moderne landelijke woningen zijn voorzien van 3 slaapkamers, 1 badkamer (mogelijkheid tot extra badkamer of bureel, een ruime living en keuken, een berging, alsook een zolder met een vaste trap wat de mogelijkheid biedt tot uitbreiding naar extra slaapkamer of hobbyruimte. De woningen zullen uitgerust zijn met vloerverwarming en zonnepanelen waardoor we binnen het vereiste E-Peil van E-30 vallen.
Type vastgoed Huis
Prijs 381.000
Bewoonbare opp. 197
Aantal slaapkamers 3
Aantal badkamers 1