Te koop Luxe penthouse met 4 ruime slaapkamers te ...

Beschrijving van   

Vergelijk realty's

Te koop Luxe penthouse met 4 ruime slaapkamers te koop in 9070

Luxe penthouse met 4 ruime slaapkamers te koop in 9070
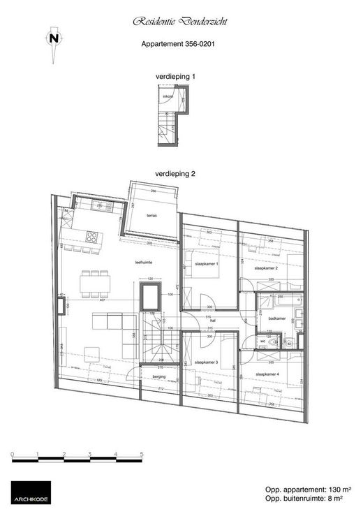
Dit prachtige penthouse van 130m² op de bovenste verdieping van residentie "Denderzicht" biedt een combinatie van luxe en hedendaags wooncomfort. Bij binnenkomst, via de royale inkomhal, wordt u meteen verwelkomt in de ruime leef- en eetkamer met een prachtige moderne open keuken voorzien van zeer kwalitatieve toestellen. Het hoge schuifruimraam biedt een prachtig zicht op het zuid gerichte terras van 8m², waar u volop van de zon kunt genieten.Het appartement beschikt over vier comfortabele slaapkamers en een moderne badkamer, voorzien van een dubbele lavabo, ligbad en een ruime inloopdouche. Met tot slot een apart gastentoilet. Voor optimaal comfort is er een optie om een garagebox aan te kopen.Met een E-peil van 28 bent u nog voor jaren verzekerd van een energiezuinig en duurzaam appartement! Geniet in deze kleinschalige residentie "Denderzicht" van een luxe woonervaring met alle comfort binnen handbereik!Wees snel nu het 6% btw-tarief nog van toepassing is! Indeling:inkomhal - leef- en eetkamer - open keuken - terras - slaapkamer 1 - slaapkamer 2 - slaapkamer 3 - slaapkamer 4 - gastentoilet - badkamer
Type vastgoed Appartement
Prijs 475.000
Bewoonbare opp. 130
Aantal slaapkamers 4
Aantal badkamers 1