Te koop Bouwgrond

Beschrijving van   

Vergelijk realty's

Te koop Bouwgrond

Bouwgrond Bouwgrond Bouwgrond Bouwgrond Bouwgrond Bouwgrond Bouwgrond Bouwgrond
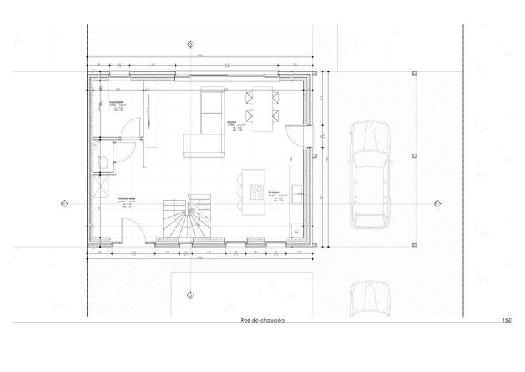
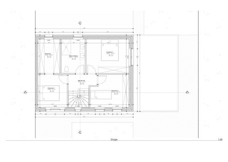
Ceci est une idée de projet, avec une liberté totale de modification pour construire la maison de vos rêves. C'est dans un cadre enchanteur que Maisons Compère vous propose ce terrain à bâtir d'une superficie de 644 m², situé dans la région de Filot (Hamoir). La ville d'Ouffet se trouve à seulement 10 minutes, tandis que la charmante ville de Durbuy est accessible en 20 minutes. Le terrain dispose d'une façade de 20 mètres ainsi que d'une profondeur de 32 mètres. Sa situation est idéale, se trouvant à moins de 10 minutes des commerces de proximité tels que les stations-services, les restaurants et les supermarchés. L'accès à l'autoroute E25 est à seulement 15 minutes, permettant ainsi de rejoindre rapidement Liège. Nous vous proposons un projet de construction d'une maison trois façades comprenant : Au rez-de-chaussée, vous découvrirez un séjour lumineux ouvert sur une cuisine contemporaine, un hall d'entrée, un WC et une buanderie. Une agréable terrasse ainsi qu'un carport sont également inclus. À l'étage, 3 chambres, un dressing et une salle de bain. Ce projet est entièrement modulable selon vos envies et vos désirs. Prix : terrain + projet de construction : 223.087€ Hors frais Le prix est donné à titre indicatif et pourra être modifié en fonction des ajustements apportés au projet. Pour plus de renseignements, nous restons disponibles durant les heures de bureau.
Type vastgoed Grond
Prijs 40.000