Te koop Commercieel gelijkvloers in nieuwbouwproje...

Beschrijving van   

Vergelijk realty's

Te koop Commercieel gelijkvloers in nieuwbouwproject te Stekene

Commercieel gelijkvloers in nieuwbouwproject te Stekene Commercieel gelijkvloers in nieuwbouwproject te Stekene Commercieel gelijkvloers in nieuwbouwproject te Stekene Commercieel gelijkvloers in nieuwbouwproject te Stekene Commercieel gelijkvloers in nieuwbouwproject te Stekene Commercieel gelijkvloers in nieuwbouwproject te Stekene Commercieel gelijkvloers in nieuwbouwproject te Stekene Commercieel gelijkvloers in nieuwbouwproject te Stekene Commercieel gelijkvloers in nieuwbouwproject te Stekene Commercieel gelijkvloers in nieuwbouwproject te Stekene Commercieel gelijkvloers in nieuwbouwproject te Stekene Commercieel gelijkvloers in nieuwbouwproject te Stekene
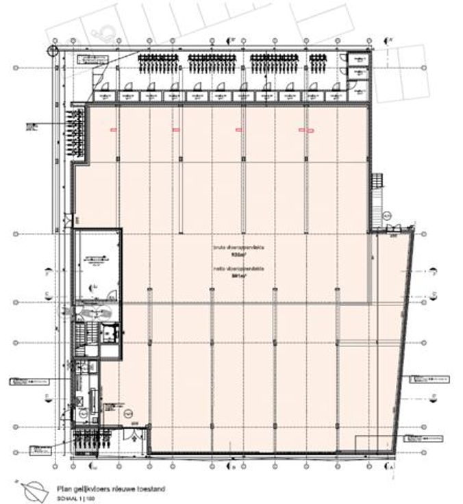
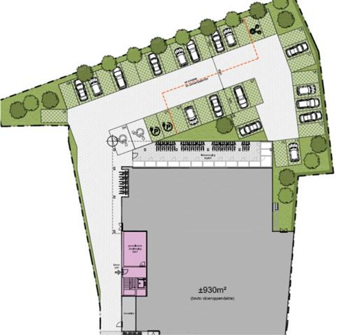
Dit moderne nieuwbouwproject biedt een ruim commercieel gelijkvloers van 930m², met de mogelijkheid om deze op te splitsen in twee afzonderlijke units. Gelegen aan de Molenbergstraat, in het centrum van Stekene, bevindt het pand zich op een strategische locatie, vlakbij de levendige Dorpsstraat – een bruisend handelscentrum met diverse winkels, horecagelegenheden en uitstekende openbaar vervoersverbindingen. Dankzij de gunstige ligging in Stekene is er een snelle aansluiting met de N403 richting Sint-Niklaas en Hulst, en de E34/A11 naar Gent, Antwerpen en Knokke. Het pand wordt casco opgeleverd, wat volledige flexibiliteit biedt voor de inrichting naar eigen smaak en eisen. De oplevering is gepland voor Q1 2026. Daarnaast beschikt het project over 20 buitenparkeerplaatsen, wat bijdraagt aan het comfort en de toegankelijkheid van het gebouw. De prijs per parkeerplaats bedraagt €7.500, en parkeerplaatsen met laadpaal zijn beschikbaar voor €9.000.
Type vastgoed Commercieel
Prijs 1.674.000
Bewoonbare opp. 930