Te koop Huis

Beschrijving van   

Vergelijk realty's

Te koop Huis

Huis Huis Huis
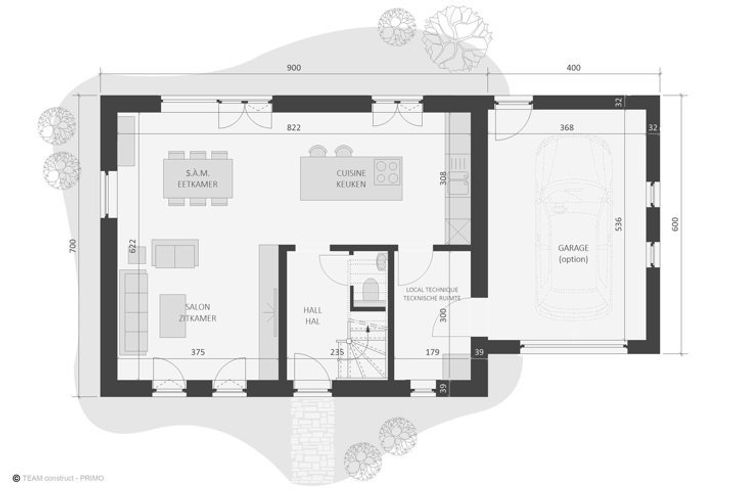
Projet de villa QZEN - Quasi Zéro Energie et 100% traditionnelle, sur un terrain de 885m². La maison proposée se compose d'un beau hall d’entrée, salon salle à manger, d'une cuisine non équipée et d’une buanderie. A l’étage 3 chambres, sdb avec meuble lavabo et son miroir, appareils sanitaires et robinetterie inclus. Modification des plans et personnalisation (possibilité d'agrandissement). PEB A+ : Triple vitrage, panneaux photovoltaïques et ventilation double flux. Isolation des murs 14cm, du sol 12cm entre 22 et 44 cm d'isolation en toiture. différents choix dans les matériaux au prix de base sans supplément. Finition clé sur porte en construction 100% traditionnelle avec cahier des charges complet. Venez prendre des informations précises dans nos maisons témoins à Houdeng ou Chaumont-Gistoux. En semaine et le samedi uniquement sur rendez-vous. N’hésitez plus, contactez-moi au 02/556 47 56. Le prix total du projet TVA comprise est de 374.577€ et comprend: maison, architecte, terrain, notaire, budget raccordements de 5000€, réserve pour fondation de 15.000€, essai de sol, ingénieur, étude de stabilité, PEB, coordinateur sécurité, réserve pour option supplémentaire.
Type vastgoed Huis
Prijs 315.667
Bewoonbare opp. 126
Aantal slaapkamers 3
Aantal badkamers 1