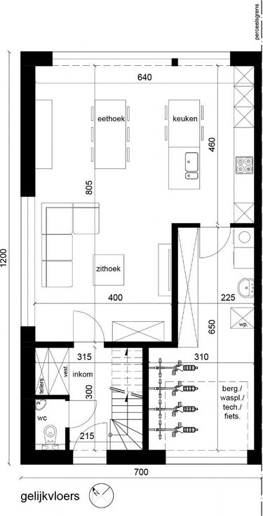
Te koop Nieuw te bouwen halfopen woning te Oudenaa...

Beschrijving van   

Vergelijk realty's

Te koop Nieuw te bouwen halfopen woning te Oudenaarde.

Nieuw te bouwen halfopen woning te Oudenaarde. Nieuw te bouwen halfopen woning te Oudenaarde. Nieuw te bouwen halfopen woning te Oudenaarde.
Wist je dat wij je richting geven met onze voorbeeldwoningen, maar dat je alles nog kan veranderen naargelang stijl en eigen wens? Naast de esthetische, architecturale kant geven wij je ook kennis mee van het hedendaagse wooncomfort. Want Your Home, dat is samen bouwen. Wil je graag alles eens persoonlijk overlopen? Neem gerust eens contact op met ons. Wij helpen je graag verder. Mail naar aanvraag@yourhome.be of bel 056 755 788 Tip: Bezoek onze Kijkwoning na afspraak (zie www.yourhome.be/kijkwoning).
Type vastgoed Huis
Prijs 426.291
Bewoonbare opp. 189
Aantal slaapkamers 3