Te koop Oudere woning met grond (bouwgr. na afbraak)

Beschrijving van   

Vergelijk realty's

Te koop Oudere woning met grond (bouwgr. na afbraak)

Oudere woning met grond (bouwgr. na afbraak) Oudere woning met grond (bouwgr. na afbraak) Oudere woning met grond (bouwgr. na afbraak) Oudere woning met grond (bouwgr. na afbraak) Oudere woning met grond (bouwgr. na afbraak) Oudere woning met grond (bouwgr. na afbraak)
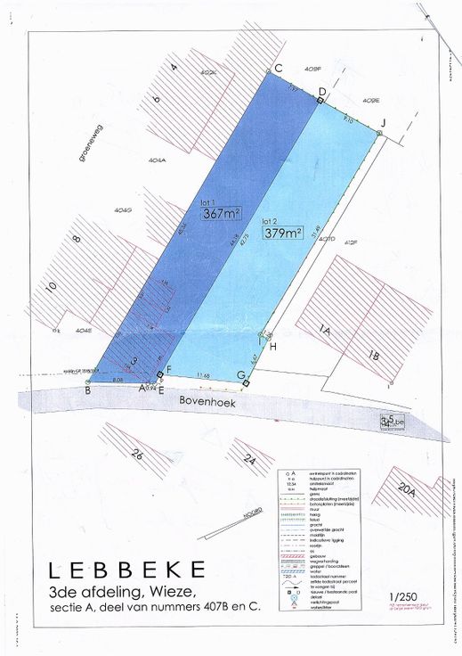
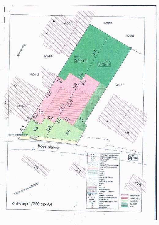
Eigendom bestaande uit een oude woning met grond te Wieze Bovenhoek 3, in een rustige omgeving, vlakbij scholen en dorpskern van Wieze. Het eigendom is het lot 1 van de goedgekeurde verkaveling dd. 22.02.2018 met als bestemming : oprichten gesloten bebouwing (na afbraak oude woning)(zie verkavelingsplan). Het eigendom heeft een totale oppervlakte van 367 m² (zie metingsplan). De perceelsbreedte aan de straat = 8,08 m. Huidige voorgevelbreedte bestaande woning = 7,06 m. Mogelijke voorgevelbreedte bij nieuwbouw = ± 7,90 m (zie verkavelingsplan). Aan de huidige bestaande (oude) woning mogen enkel niet vergunningsplichtige werken uitgevoerd worden, zoals instandhoudingswerken. Afbraak + nieuwbouw (gesloten bebouwing) - particulier : 6% BTW. Voor meer info contacteer : Landmeet- en vastgoedkantoor Willem Meersschaut - Tel. : 0475411707 - email : willem.meersschaut@belgacom.net
Type vastgoed Huis
Prijs 145.000
Bewoonbare opp. 367