Te koop Huis

Beschrijving van   

Vergelijk realty's

Te koop Huis

Huis Huis Huis Huis Huis Huis Huis Huis Huis Huis Huis Huis Huis Huis Huis Huis
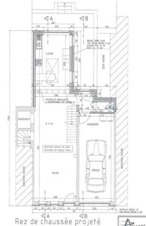
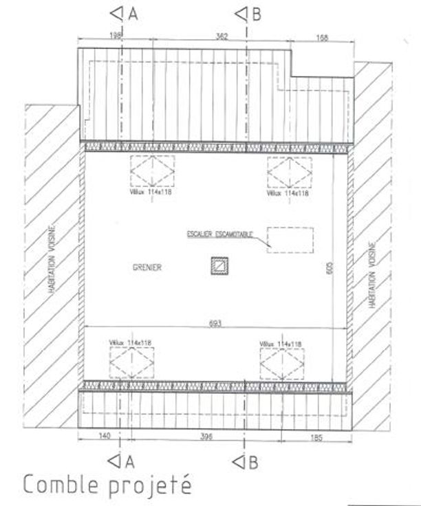
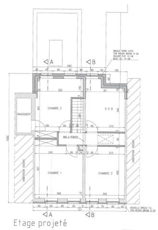
Réf.: 2210. Lot de 2 maisons (la première à rafraîchir et la seconde à rénover avec projet architecte disponible)! Elle se compose au rez-de-chaussée d'un salon, une salle à manger, un espace dinatoire, une salle de bain (douche, lavabo, WC). A l'étage: 2 chambres et un grenier aménageable. Divers: jardin clôturé, remise. Un permis d'urbanisme octroyé en 2016 pour la transformation en une maison avec garage (expiré à l'heure actuelle), visualisation du projet dans les dernières photos. A VISITER SANS TARDER!!! Faire offre à partir de 70.000,00€. Informations communiquées à titre indicatif et non contractuel. Les propriétaires se réservent le droit d'apprécier la hauteur et la qualité des offres. N’hésitez pas à visiter notre site internet : www.century21-performance.be. Nous sommes constamment à la recherche de nouveaux biens pour nos clients en attente, n'hésitez pas à nous contacter au 065/460.000 pour UNE ESTIMATION GRATUITE ET SANS ENGAGEMENT! Concernant le choix de l'acquéreur; les critères de sélection du propriétaire ne sont pas uniquement le prix. Le choix reste à l'appréciation de ce dernier qui seul, en décidera.
Type vastgoed Huis
Prijs 70.000
Bewoonbare opp. 120
Aantal slaapkamers 2
Aantal badkamers 1