Te koop Bel-etage

Beschrijving van   

Vergelijk realty's

Te koop Bel-etage

Bel-etage Bel-etage Bel-etage Bel-etage Bel-etage Bel-etage Bel-etage Bel-etage Bel-etage Bel-etage Bel-etage Bel-etage Bel-etage Bel-etage Bel-etage Bel-etage Bel-etage Bel-etage Bel-etage Bel-etage Bel-etage
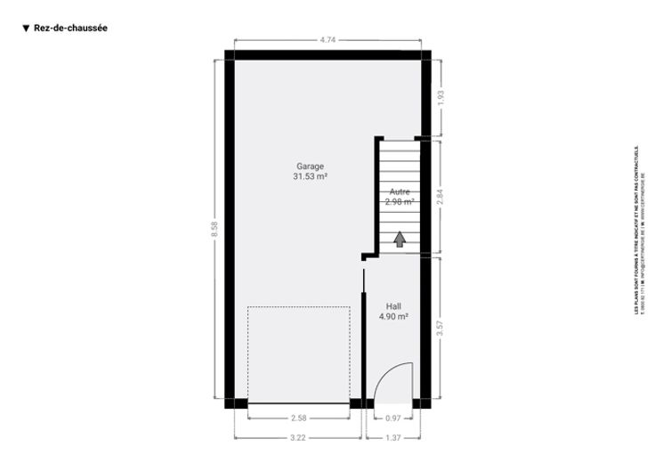
Réf.: 144. Bel étage rénové de 2 chambres avec garage bien situé proche des commodités et axes routiers! Il se compose au rez-de-chaussée: d'un hall d'entrée et un garage pour 2 voitures (porte électrique). Au premier étage: un grand salon, une cuisine équipée (taque vitro, four, hotte, évier double), une salle à manger,  une salle de bain (lavabo, baignoire et douche séparée) et un WC. Au deuxième étage : 2 chambres. A l'extérieur: une terrasse. Divers: Conformité électrique ,PEB B, bonne toiture, châssis PVC double vitrage, chauffage central gaz (nouvelle chaudière Vaillant). Bien actuellement loué! RC 482€ Faire offre à partir de 180.000,00€. Informations communiquées à titre indicatif et non contractuel. Les propriétaires se réservent le droit d'apprécier la hauteur et la qualité des offres. Nous sommes constamment à la recherche de nouveaux biens pour nos clients en attente, n'hésitez pas à nous contacter au 0499 924 999 pour UNE ESTIMATION GRATUITE SOUS 48H ET FAITE PAR LE PATRON EN PERSONNE. Concernant le choix de l'acquéreur; les critères de sélection du propriétaire ne sont pas uniquement le prix. Le choix reste à l'appréciation de ce dernier qui seul en décidera.
Type vastgoed Huis
Prijs 180.000
Bewoonbare opp. 95
Aantal slaapkamers 2
Aantal badkamers 1