Te huur Handelszaak

Beschrijving van   

Vergelijk realty's

Te huur Handelszaak

Handelszaak Handelszaak Handelszaak Handelszaak Handelszaak Handelszaak
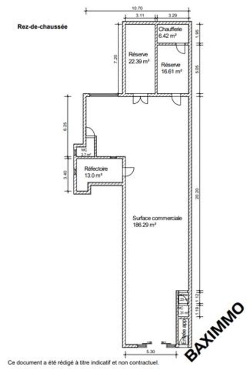
Spacieuse surface commerciale sise au centre de Beauraing. Le bien de 250m² se compose d’une surface modulable d’environ 190 m ², de deux réserves avec deux sanitaires et un réfectoire. Facilement modulable, nombreuses sont les possibilités d’exploitation. Facilité de parking directement devant la surface. Libre à partir du 01 mars 2025. COMPOSITION : Rez-de-chaussée : Surface commerciale de 186m² entièrement aménageable, réfectoire avec coin évier, deux réserves, chaufferie, deux WC et une cabine. Extérieur : Deux vitrines.
Type vastgoed Commercieel
Prijs 2.000
Bewoonbare opp. 250