Te koop Bouwgrond van 953m² voor OB op rustige lig...

Beschrijving van   

Vergelijk realty's

Te koop Bouwgrond van 953m² voor OB op rustige ligging!

Bouwgrond van 953m² voor OB op rustige ligging! Bouwgrond van 953m² voor OB op rustige ligging!
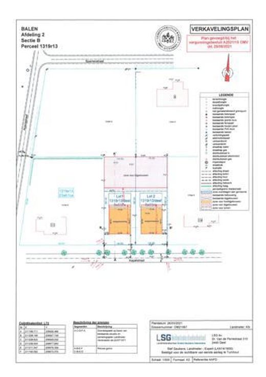
Rustig en mooi gelegen bouwgrond van 953 m² voor open bebouwing. Straatbreedte grond 18,50 m en 51,50 m diep. Deze mooie bouwgrond is rustig gelegen, doch bovendien ook zeer gunstig gelegen bij allerlei invalswegen richting Mol, Balen-centrum, Lommel, Geel, Dessel, enz… Zo ook is grond gelegen op een boogscheut van enkele winkels, supermarkten, bakkers, apotheek, kleuterscholen, basisschool, tal van sportfaciliteiten, horeca, fiets -en wandelroutes, zo ook is recreatiedomein de Keiheuvel vlakbij gelegen. Voor meer info, contacteer ons kantoor ! 014/82.15.15.
Type vastgoed Grond
Prijs 179.000