Te koop Huis

Beschrijving van   

Vergelijk realty's

Te koop Huis

Huis Huis Huis Huis Huis Huis Huis Huis Huis Huis Huis Huis Huis Huis Huis Huis Huis Huis Huis Huis Huis
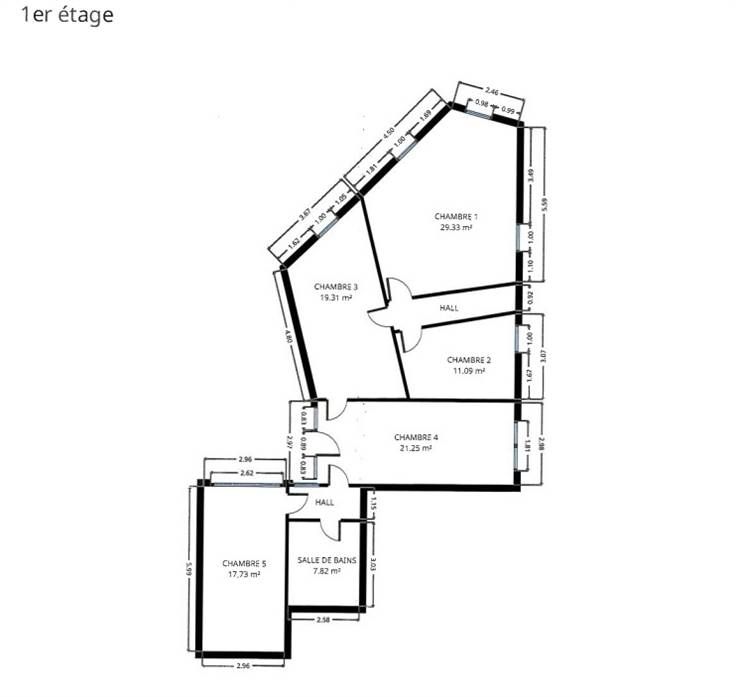
Sorry er is geen nederlandse vertaling beschikbaar. Express Immo Prestige vous propose de découvrir cette belle opportunité à saisir:  idéalement située et proche des axes autoroutiers à Chatelineau !! Cet  ensemble immobilier de 230 m2 composé d’un appartement de 120 m2 et d’un rez commercial actuellement exploité par une pharmacie. Mais peut également convenir uniquement comme maison d'habitation. Composition :niv-1 : cave Rez de chaussée commercial d’une superficie de 110 m2 , réparti comme suit : salle d’accueil, bureau, salle à manger, cuisine et garage avec cour intérieure. Niv 1 :hall de nuit, 5 grandes chambres ou  pièces de vie de 11,17,19,21 et 30 m2, salle de bain. Niv 2 : grenier à aménager. Infos techniques : compteurs électrique bi horaire, châssis dv en PVC, chauffage central mazout, pour le rez de chaussée celui-ci est équipé d’une pompe à chaleur récente ! Avec son potentiel, le batiment offre différentes possibilités d’exploitation !! Peb E : 384kwh/m².an , code unique 20240222009335 Prix : Faire offre à partir de 199000 euros pour l’immeuble entier. ( sous réserve d'acceptation du propriétaire)  Pour plus d’informations et/ou une visite, n’hésitez pas à nous contacter au 0499/199393 et 0488/533.573  A visiter sans tarder !!
Type vastgoed Huis
Prijs 199.000
Bewoonbare opp. 230
Aantal slaapkamers 5
Aantal badkamers 1