Te koop Uitstekend gelegen bouwgrond voor OB te Oo...

Beschrijving van   

Vergelijk realty's

Te koop Uitstekend gelegen bouwgrond voor OB te Oosterzele

Uitstekend gelegen bouwgrond voor OB te Oosterzele Uitstekend gelegen bouwgrond voor OB te Oosterzele Uitstekend gelegen bouwgrond voor OB te Oosterzele Uitstekend gelegen bouwgrond voor OB te Oosterzele
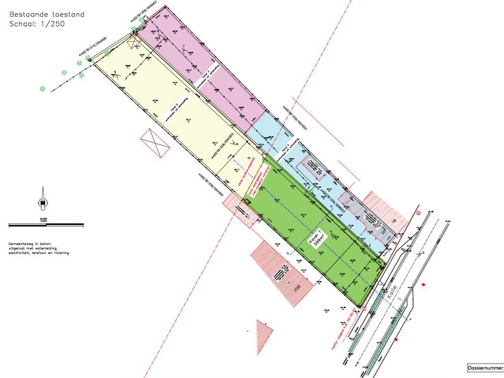
Deze gunstig gelegen bouwgrond van het type open bebouwing bevindt zich te Kalle in het immer rustige en landelijke doch centraal gelegen Balegem (Oosterzele). Het treinstation, winkels, de N42, ... bevinden zich vlakbij. De grond heeft een totale oppervlakte van 1.330m², een straatbreedte van 13,86m en geniet een zicht op groen. Voorschriften woning: A. TYPOLOGIE: de woning op lot 1 wordt opgericht in open verband, zoals weergegeven op het verkavelingsplan. B. INPLANTING: de voorbouwlijn ligt in het verlengde van de links aanpalende woning nr 20B en is verplicht te volgen. Maximale bouwdiepte van 18m op het gelijkvloers. Maximale bouwdiepte van 12m op de verdieping. C. BOUWVOLUME: maximaal 2 bouwlagen kunnen voorzien worden onder platte of hellende bedaking. Dakhelling: 0°- 45°. Kroonlijsthoogte maximaal 6,50m bij plat dak. Kroonlijsthoogte maximaal 6m bij hellend dak. De constructiehoogte bedraagt maximaal 3,5m voor het bouwvolume op het gelijkvloers voorbij het hoofdgebouw. Platte bedaking te voorzien t.h.v. aanbouwen. Kelder toegestaan binnen zone voor hoofdgebouw. Voorschriften bijgebouw(en): A. INPLANTING: in de achtertuin is één losstaand bijgebouw toegelaten van max. 40m² conform het vrijstellingenbesluit. In de bijgebouwen worden geen garages toegestaan. In de voor- en zijtuinstrook worden geen constructies toegestaan. B. BOUWVOLUME: de maximale hoogte (nokhoogte) bedraagt 3,5m. De dakvorm is vrij. De foto's en luchtbeelden zijn louter informatief en kunnen geen v
Type vastgoed Grond
Prijs Op aanvraag