Te koop Huis

Beschrijving van   

Vergelijk realty's

Te koop Huis

Huis Huis Huis
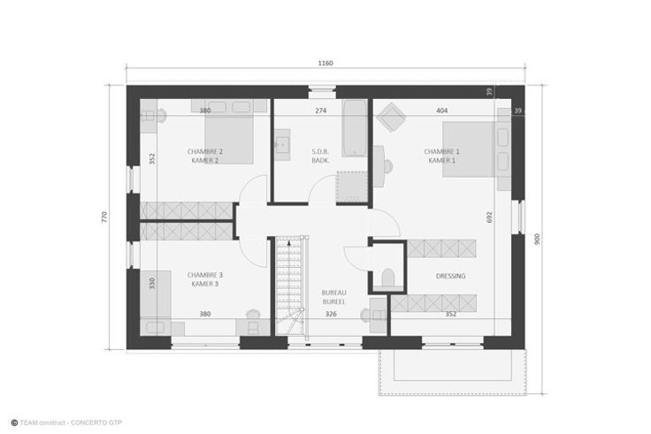
Projet de villa PEB A+ (triple vitrage, 14 panneaux solaires photovoltaïques, pompe à chaleur, chauffage sol, ventilation double flux avec récupérateur de chaleur, ...) sur un terrain de 2934 m². Le terrain est situé au calme dans un beau village. Nombreuses possibilités de personnaliser ou de modifier le projet (possibilité d'agrandissement à petit prix) .Grand choix de matériaux sans supplément. Finition clé sur porte en construction 100% traditionnelle avec cahier des charges très complet. Maison témoin à visiter 7 jours sur 7 sur rdv. Prix hors frais. Vente sous régime T.VA. et droit d'enregistrement. PEB exceptionnel. Prix total: 473.260€ ttc(prix fixe dans le contrat) (prix fixe durant le chantier)( Comprenant: la T.V.A., les honoraires de l' architecte, une estimation de frais de raccordement, les frais de notaire et d'enregistrement sur le terrain, le bilan énergétique , une réserve de fondation, le coordinateur de sécurité, le sondage du terrain, l'étude de stabilité, le PEB, ...) Plus d'information www.teamconstruct.be ou 02/5564756
Type vastgoed Huis
Prijs 399.975
Bewoonbare opp. 184
Aantal slaapkamers 3
Aantal badkamers 1