Te koop Appartement

Beschrijving van   

Vergelijk realty's

Te koop Appartement

Appartement Appartement Appartement Appartement Appartement Appartement Appartement Appartement Appartement Appartement Appartement Appartement Appartement Appartement Appartement Appartement Appartement Appartement Appartement Appartement Appartement Appartement Appartement Appartement Appartement Appartement
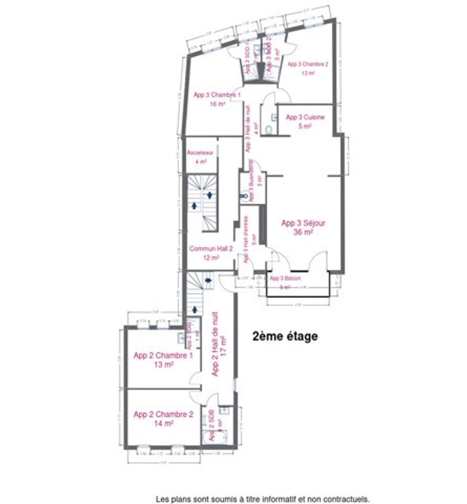
Superbe immeuble situé Place du Pont Neuf 16 à Malmedy avec six appartements entièrement rénovés. Les deux rez-de-chaussée sont déjà vendus! - 1er étage: appartement de 93m² avec 2 chambres et 2 salles d'eau au prix de 269 000€ + 1er étage du Duplex de 92m² avec 2 chambres, une salle de bain et une douche au prix de 259 000€. - 2ème étage: appartement 2 chambres de 93m² au prix de 279 000€ + 2ème étage du Duplex. - 3ème et 4ème étage: Duplex de 118m² avec 3 chambres et 3 salles d'eau au prix de 329 000€. Cave privative et place de parking extérieur inclus. Ascenseur, isolation des façades, de la toiture avec 22cm de laine (couverture entièrement neuve) et des planchers. Châssis PVC double vitrage. Les plaques et portes d'entrée des appartements sont RF. Chaudière mazout à condensation commune avec intégrateurs individuels. Sèche serviette dans les salles d'eau. Compteurs d'eau et d'électricité séparés. Salle de bain/douche: entièrement équipée. Cuisine: à installer (à charge de l'acquéreur). Rapport PEB B Le raccordement général de l'immeuble est réalisé, l'acquéreur paiera au vendeur les frais de raccordement aux impétrants. Cahier des charges disponible sur demande. Prix: entre 269 000€ et 329 000€. Les prix s'entendent hors TVA. Fin du chantier et livraison des appartements fin 2024. Plus d'informations via info@immo-tt.be ou au 080/78 50 37
Type vastgoed Appartement
Prijs 269.000
Bewoonbare opp. 92
Aantal slaapkamers 2
Aantal badkamers 2