Te koop Bouwgrond voor open bebouwing op de bekend...

Beschrijving van   

Vergelijk realty's

Te koop Bouwgrond voor open bebouwing op de bekende Berendries in...

Bouwgrond voor open bebouwing op de bekende Berendries in... Bouwgrond voor open bebouwing op de bekende Berendries in... Bouwgrond voor open bebouwing op de bekende Berendries in... Bouwgrond voor open bebouwing op de bekende Berendries in...
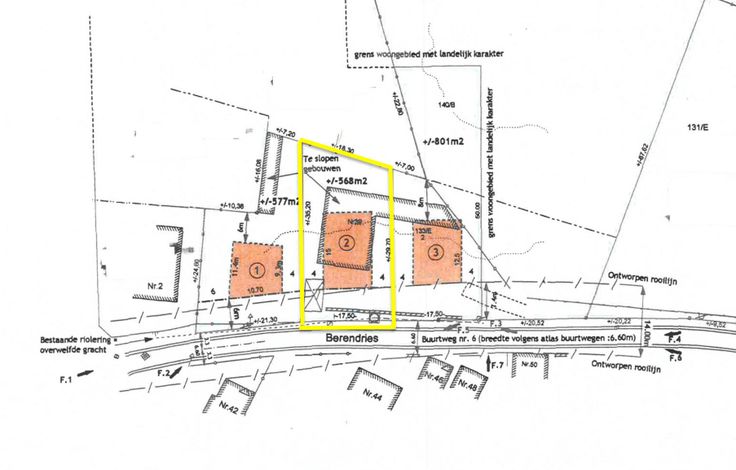
Deze bouwgrond van 569m2 is gelegen in een groene omgeving op de Berendries in Brakel.  De bouwgrond is geschikt voor een ruime open bebouwing, zie bijgevoegd plan.  Stedenbouwkundige inlichtingen: woongebied met landelijk karakter, geen rechterlijke herstelmaatregel of bestuurlijke maatregel opgelegd, geen voorkooprecht.  Watertoets: Gebouwscore onbekend, Perceelscore C. Geen voorkooprecht.  Voor meer info of een bezoek bel Elisa 0468 45 65 26  of elisa@ocvastgoed.be Renovatieplicht: onbekend
Type vastgoed Grond
Prijs 129.000