Te koop Appartement

Beschrijving van   

Vergelijk realty's

Te koop Appartement

Appartement Appartement Appartement Appartement Appartement Appartement Appartement Appartement Appartement Appartement Appartement
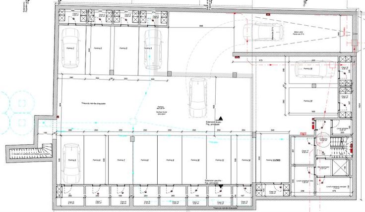
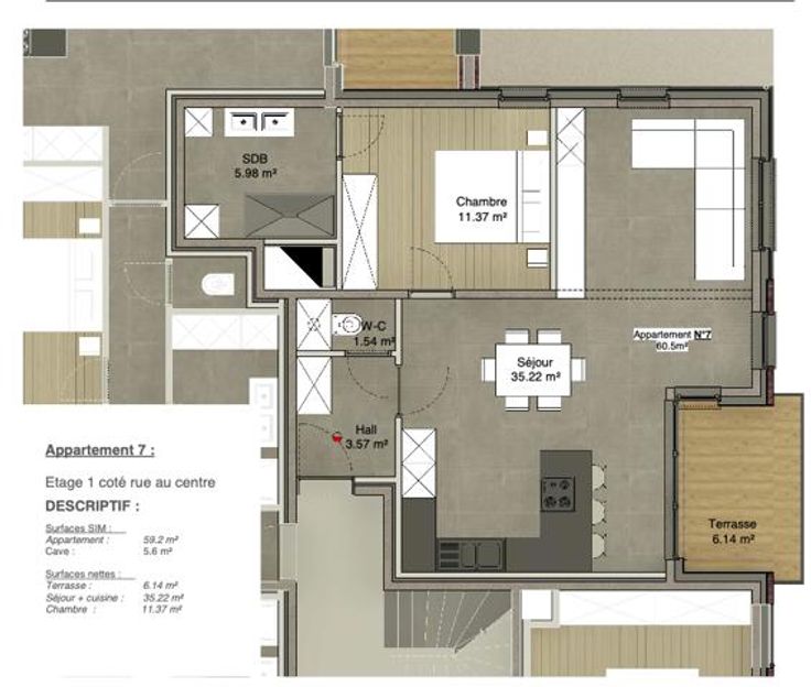
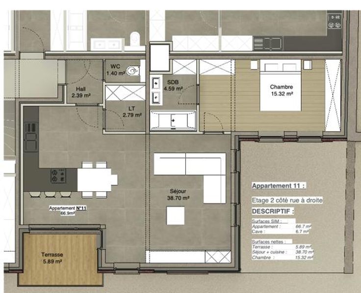
Découvrez les nouveaux Appartements à La Louvière, situés à proximité des grands axes routiers et proche de toutes les facilités. Dans un cadre Verdoyant, la résidence "Les Jardins du Centre" propose 3 Appartements 1 chambre composés comme suit : Hall d'entrée, Lumineux Séjour avec une cuisine équipée, Buanderie, Salle de bain et WC séparé. TERRASSE (excepté l'appartement 1), EMPLACEMENT PARKING et CAVE pour chaque appartement. Un espace Parc Vert paysagé sera accessible Uniquement aux Résidents. Les appartements sont équipés d'un confort assuré : porte d'entrée blindée, vidéophonie couleur, chauffage individuel, isolation acoustique et thermique, vmc double-flux. Ascenseur desservant tous les niveaux. Les matériaux sont de hautes qualités. Certifications PEB estimées pour toutes les unités : A ; A+. Accessible aux personnes à mobilité réduite. Le prix varie de 163.400€ à 169.600€ hors TVA et hors frais. L'emplacement parking et la cave sont à acquérir obligatoirement au prix de 20.000€ hors TVA. Vente effectuée sous régime Loi Breyne = choix des finitions possibles par les acquéreurs. Contactez nous sans tarder pour visiter votre appartement dans un Quartier plein d’Avenir, en toute Sécurité et pour votre Bien-être.
Type vastgoed Appartement
Prijs 163.400
Bewoonbare opp. 66
Aantal slaapkamers 1
Aantal badkamers 1