Te koop Nieuwbouwwoning - half open bebouwing

Beschrijving van   

Vergelijk realty's

Te koop Nieuwbouwwoning - half open bebouwing

Nieuwbouwwoning - half open bebouwing Nieuwbouwwoning - half open bebouwing Nieuwbouwwoning - half open bebouwing Nieuwbouwwoning - half open bebouwing
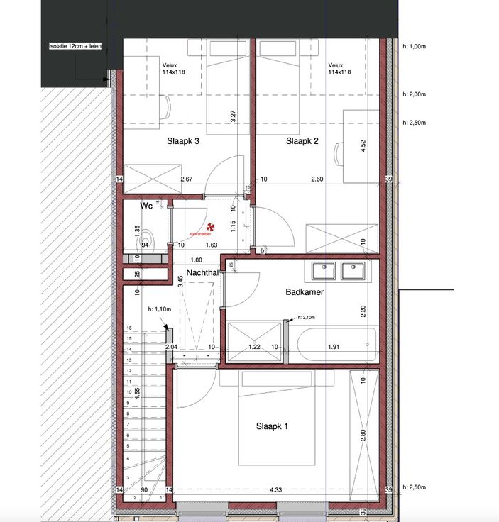
Deze prachtige nieuwbouwwoning biedt alle hedendaags comfort in een mooie, rustige en kindvriendelijke omgeving. Gelegen op het Sint-Elooisplein te Ruddervoorde, heb je hier alles binnen handbereik : winkels, bakker, beenhouwer, scholen, vlotte verbinding met autosnelweg,... Deze energiezuinige woning op een grondoppervlakte van 145m² is uitgerust met : Benedenverdieping: Inkomhal met gastentoilet, zeer lichtrijke leefruimte met geïntegreerde keuken dewelke onmiddellijk toegang verleend tot het zonnige terras en tuin. Berging aan de keuken met aansluiting wasmachine en droogkast. Carport + parking 1ste verdieping: Nachthal met apart toilet, 3 slaapkamers, badkamer met dubbele lavabo in meubel, inloopdouche en ligbad. Zolderverdieping te bereiken via uittrektrap. Wenst u meer info over het lastenboek of plannen, neem contact op : info@futurimmo.be of 0470 50 50 50.
Type vastgoed Huis
Prijs 331.000
Bewoonbare opp. 140
Aantal slaapkamers 3
Aantal badkamers 1