Bespaar op de aankoop van jouw nieuwbouwwoning & steek zelf de handen uit de mouwen! Deze praktische nieuwbouwwoning wordt wind- en waterdicht te koop aangeboden. Je kan dus héél wat besparen door zelf je uitvoering van de vloerwerken, keuken, deuren, .... te voorzien. Liever toch volledig afgewerkt aankopen? Alles is mogelijk en bespreekbaar.
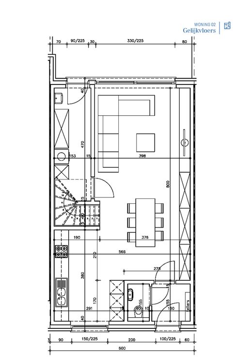
Moderne nieuwbouwwoning met 3 tot 4 slaapkamers. De woning heeft een optimale indeling waarbij de bewoonbare oppervlakte optimaal benut wordt. Op het gelijkvloers beschikt de woning over een inkom met gastentoilet, een open en lichtrijke woonkamer met open keuken en een zeer praktische was-/bergplaats. Op de eerste verdieping bevinden zich 3 slaapkamers, een apart toilet en een badkamer met bad en douche. De zolder is toegankelijk met een vaste trap waardoor hier perfect een vierde slaapkamer kan gemaakt worden. Achteraan het perceel is een doorweg voorzien met een carport en tuinberging (inbegrepen in de prijs).
Zie jij jezelf hier wonen? Bel onze bouwadviseur Ewout Vanden Bussche voor meer informatie op 0497 588 888 of mail naar contact@huysmanbouw.be
Renovatieplicht: onbekend