Te huur Opslagruimte in KMO-park Klinkaard

Beschrijving van   

Vergelijk realty's

Te huur Opslagruimte in KMO-park Klinkaard

Opslagruimte in KMO-park Klinkaard Opslagruimte in KMO-park Klinkaard Opslagruimte in KMO-park Klinkaard Opslagruimte in KMO-park Klinkaard Opslagruimte in KMO-park Klinkaard Opslagruimte in KMO-park Klinkaard Opslagruimte in KMO-park Klinkaard Opslagruimte in KMO-park Klinkaard
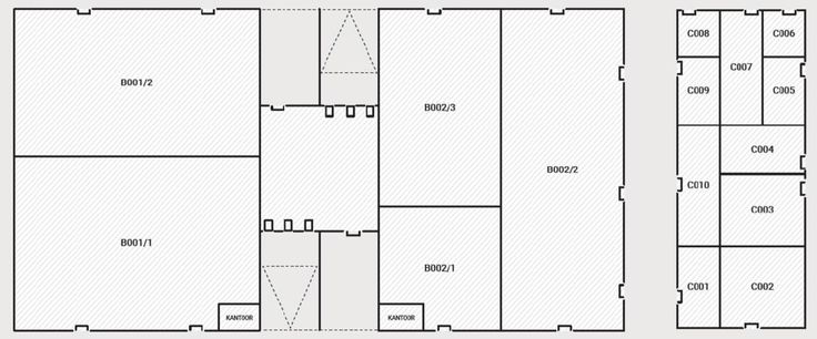
Op slechts 10 minuten afstand van de A12 naar Antwerpen en Brussel en met steden als Gent, Rotterdam, Hasselt en Eindhoven binnen een straal van 90 kilometer is deze locatie een ideale logistieke uitvalsbasis tussen België en Nederland. Deze magazijnen zijn gelegen in de Klinkaardstraat te Kapellen, in de nabijheid van de haven van Antwerpen. Deze KMO-units is zeer duurzaam aangezien er groene ernergie wordt geproduceerd op de daken van deze opslagplaatsen. Dit vermindert zowel de CO²-uitstoot als de energiekost. Specificaties: Opslagruimte - Voor conventionele goederen - Vrije hoogte: 9m - Betonvloer 20 cm, draagkracht 50kN/m² - Buitenwanden in beton; binnenwanden sandwichpanelen Rf 30min - Branddetectie - Wateraansluiting - Verlichting 200lux - Groene stroom aanwezig - Inbraakalarm in optie - Volledig afgesloten terrein - Stopcontacten 220v/300v - Sanitair + lavabo per unit - Isolatie dak: 6cm - Isolatie wanden: 6cm - Lichtstraten - 1 gelijkvloerse poort Unit B001-1 beschikt over een overdekte luifel & laadkade, 3 laadbruggen, 3 poorten en 6 parkeerplaatsen. Er is 500m² laadasas en 2 kantoorruimtes van 60m². Unit C007 beschikt over 3 parkeerplaatsen.
Type vastgoed Commercieel
Prijs 1.825
Bewoonbare opp. 340