Te koop Nieuwbouwappartement met Scheldezicht

Beschrijving van   

Vergelijk realty's

Te koop Nieuwbouwappartement met Scheldezicht

Nieuwbouwappartement met Scheldezicht Nieuwbouwappartement met Scheldezicht Nieuwbouwappartement met Scheldezicht Nieuwbouwappartement met Scheldezicht Nieuwbouwappartement met Scheldezicht Nieuwbouwappartement met Scheldezicht Nieuwbouwappartement met Scheldezicht
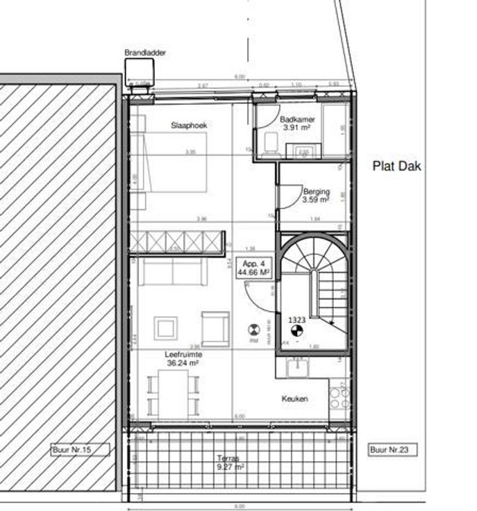
Dit nieuwbouwappartement is gelegen op de vierde verdieping van een kleinschalig appartementsgebouw (4 eenheden). In dit gebouw is geen lift aanwezig, wat de algemene kosten zeer laag houdt. Ook het EPC-attest is zeer gunstig wat het verbruik van gas en elektriciteit beperkt. Het appartement omvat een ruim terras met Scheldezicht, aansluitend een leefruimte met open keuken, achteraan het appartement vinden we een ruime slaaphoek, een grote berging voor was- en droogmachine en een badkamer. Op wandelafstand vinden we een ruim tram-en busnetwerk alsook heel wat winkels en horecagebeuren. Het appartement is nieuwbouw en wordt dus verkocht onder btw stelsel. Momenteel is het appartement verhuurd aan €775/maand. Goede investering! Lage gemeenschappelijke kosten. Voor meer informatie bel 03 344 18 28 of mail naar info@baggimmo.be
Type vastgoed Appartement
Prijs 229.000
Bewoonbare opp. 45
Aantal slaapkamers 1
Aantal badkamers 1