Te koop OOSTENDE: EXCLUSIEVE NIEUWBOUWRESIDENTIE O...

Beschrijving van   

Vergelijk realty's

Te koop OOSTENDE: EXCLUSIEVE NIEUWBOUWRESIDENTIE OP 100M V/D ZEE ...

OOSTENDE: EXCLUSIEVE NIEUWBOUWRESIDENTIE OP 100M V/D ZEE ... OOSTENDE: EXCLUSIEVE NIEUWBOUWRESIDENTIE OP 100M V/D ZEE ...
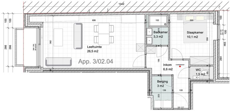
"Residentie Amandine" Dit moderne nieuwbouwproject is gelegen op een fantastische locatie: pal in het centrum van Oostende en stapvoets van de zee, het station, Visserskaai, het casino, culinaire adresjes... Dé ideale uitvalsbasis voor zowel vaste bewoning als tweede verblijf! Het gebouw situeert zich in hartje Oostende, nl. op de hoek van de Cirkelstraat en de Schippersstraat. Deze kleinschalige residentie wordt gekenmerkt door haar tijdloze architectuur en omvat 17 lichtrijke appartementen elk voorzien van een mooi terras! Er zijn appartementen te koop met 1, 2 of 3 slaapkamers. De oppervlaktes per appartement variëren tussen 61m2 en 128m2. De appartementen kunnen volledig ingericht en afgewerkt worden naar uw smaak! Het gebouw is ook voorzien van een ruime fietsenberging. Kortom: trendy en kwalitatieve appartementen, afgewerkt op uw maat, waar u zorgeloos kan genieten! E-peil 30. De appartementen zijn voorzien van warmtepomp, vloerverwarming, superisolerend glas,... Prijs 1-slaapkamer-appartement: vanaf 219.000 EUR (excl. kosten). Prijs 2-slaapkamer-appartement: vanaf 303.000 EUR (excl. kosten). Prijs duplexappartement vanaf: 404.000 EUR (excl. kosten). Verkoop onder BTW-stelsel. ! 6% BTW mogelijk, indien voldaan wordt aan de voorwaarden. Aarzel niet om een afspraak te maken: Immo Sleutel: 050/70 70 70 Renovatieplicht: NOT_APPLICABLE
Type vastgoed Appartement
Prijs 229.000
Bewoonbare opp. 64
Aantal slaapkamers 1
Aantal badkamers 1