Te koop Gerenoveerd Kantoor Te Koop in centrum Vorst

Beschrijving van   

Vergelijk realty's

Te koop Gerenoveerd Kantoor Te Koop in centrum Vorst

Gerenoveerd Kantoor Te Koop in centrum Vorst Gerenoveerd Kantoor Te Koop in centrum Vorst Gerenoveerd Kantoor Te Koop in centrum Vorst Gerenoveerd Kantoor Te Koop in centrum Vorst Gerenoveerd Kantoor Te Koop in centrum Vorst Gerenoveerd Kantoor Te Koop in centrum Vorst Gerenoveerd Kantoor Te Koop in centrum Vorst Gerenoveerd Kantoor Te Koop in centrum Vorst Gerenoveerd Kantoor Te Koop in centrum Vorst
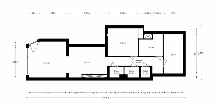
Immo Leolux biedt deze ruime instapklare handelsruimte aan, ideaal voor vrije beroepers, gelegen in het hart van Vorst. De ruimte bestaat uit een ruime open ruimte/onthaal, een volledig uitgeruste keuken, een praktische badkamer, wasplaats en berging, en twee afzonderlijke kamers die flexibel ingezet kunnen worden als vergaderruimte of kantoor. Verder is er een kelder inbegrepen, wat extra opslagmogelijkheden biedt. Het pand is recent volledig gerenoveerd en verkeert in uitstekende staat, met de elektriciteit volledig conform de wettelijke normen. Door de centrale ligging biedt het pand uitstekende bereikbaarheid, met vlotte toegang tot openbaar vervoer en diverse invalswegen, waardoor het een perfecte locatie is voor ondernemers die op zoek zijn naar een centrale werkplek. Deze instapklare handelsruimte combineert modern comfort met een strategische ligging midden in het bruisende centrum van Vorst, waar allerlei voorzieningen binnen handbereik zijn. Dankzij het feit dat het pand zich in een klein gebouw bevindt met slechts enkele mede-eigenaars zijn de gemeenschappelijke kosten laag, Met afzonderlijke meters voor water, elektriciteit en gas. De lage gemeenschappelijke kosten, de conformiteit van de elektriciteit, en de uitstekende conditie van het pand maken het een uitzonderlijke kans voor ondernemers die een kwalitatieve en goed bereikbare werkplek zoeken. Neem gerust contact met ons op om een afspraak te maken en de mogelijkheden van dit unieke pand te ontdekke…
Type vastgoed Commercieel
Prijs 259.000
Bewoonbare opp. 76
Aantal badkamers 1