Te koop Nieuw te bouwen alleenstaande woning te Va...

Beschrijving van   

Vergelijk realty's

Te koop Nieuw te bouwen alleenstaande woning te Varsenare.

Nieuw te bouwen alleenstaande woning te Varsenare. Nieuw te bouwen alleenstaande woning te Varsenare. Nieuw te bouwen alleenstaande woning te Varsenare. Nieuw te bouwen alleenstaande woning te Varsenare.
Een bouwcoördinator die je bouwgrond voorstelt én je de hand reikt met voorbeeldwoningen? Welkom bij Your Home. Wij luisteren naar jouw bouwwensen en houden rekening met jouw budget. Ook met de keuze in zonnepanelen, ventilatiesysteem of duurzame materialen staan wij je bij met raad en daad. Zo bouwen we samen aan jouw thuis. Meer informatie over de voorgestelde bouwgronden en onze woningen? Neem vrijblijvend contact met ons op. Wij helpen je graag verder. Mail naar aanvraag@yourhome.be of bel 056 755 788 Tip: Bezoek onze Kijkwoning na afspraak (zie www.yourhome.be/kijkwoning)
Type vastgoed Huis
Prijs 659.346
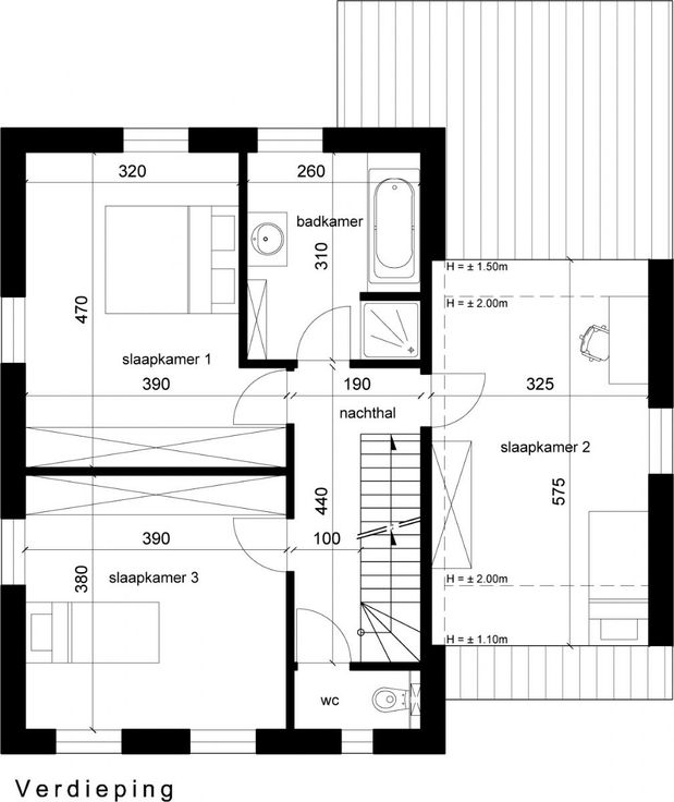
Bewoonbare opp. 227
Aantal slaapkamers 3