Te koop Heine immobilière : Maison 2 façades

Beschrijving van   

Vergelijk realty's

Te koop Heine immobilière : Maison 2 façades

Heine immobilière : Maison 2 façades Heine immobilière : Maison 2 façades Heine immobilière : Maison 2 façades Heine immobilière : Maison 2 façades Heine immobilière : Maison 2 façades Heine immobilière : Maison 2 façades Heine immobilière : Maison 2 façades Heine immobilière : Maison 2 façades Heine immobilière : Maison 2 façades
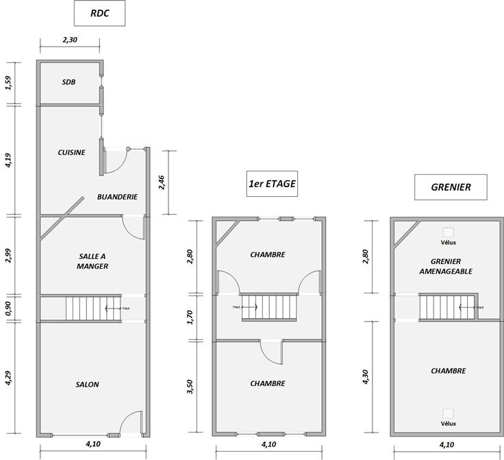
Gelegen in het centrum van Andenne, vlakbij winkels, scholen en openbaar vervoer, heeft deze goede 2-onder-1-kap stadswoning een kleine binnenplaats aan de achterkant. Op de begane grond bevinden zich een woonkamer van 18 m², een eetkamer, een keuken, een kleine bijkeuken en een badkamer. De 1e verdieping bestaat uit twee slaapkamers. De tweede verdieping bestaat uit een slaapkamer en een in te richten zolder. Twee kelders met een oppervlakte van 27 m² maken de samenstelling compleet. Apparatuur : PVC DV kozijnen, nieuwe elektriciteit, ETERNIT dak, gasgestookte convectoren. Mogelijkheid tot verminderde registratierechten (6%). BEZOEK!!!
Type vastgoed Varia
Prijs 99.000
Bewoonbare opp. 100
Aantal slaapkamers 3
Aantal badkamers 1