Te koop Villa

Beschrijving van   

Vergelijk realty's

Te koop Villa

Villa Villa Villa Villa Villa Villa Villa Villa Villa Villa Villa Villa
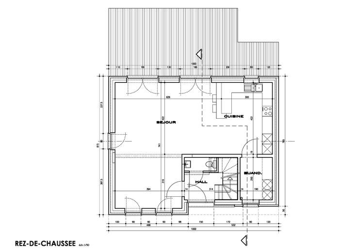
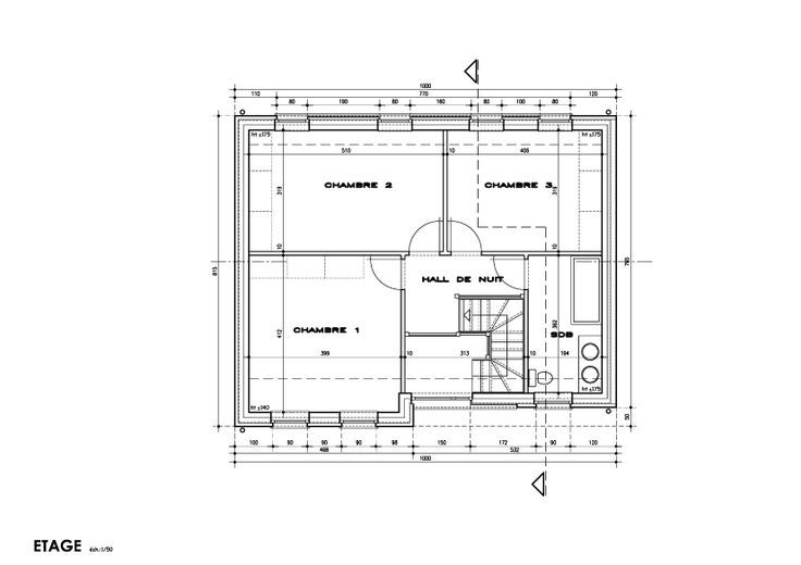
Maisons Compère vous propose de réaliser votre projet de construction sur mesure dans la ville de Seloignes, située dans la botte du Hainaut, à proximité de la frontière française, sur un superbe terrain plat de 1.300 m² orienté plein sud. Ce terrain fait partie d'un lotissement de 15 parcelles. Ce terrain bénéficie d'une situation idéale, avec un accès aux grands axes (E42) à hauteur de Couvin (20 km) et des commerces de proximité à moins d’1 km. Niché dans un cadre campagnard et éloigné du trafic urbain, il offre un environnement paisible et verdoyant. Nous vous proposons ce projet de construction 4 façades* se composant au rez-de-chaussée d'un hall d'entrée avec water-closet, une buanderie ainsi qu'un grand séjour lumineux en L ouvert sur l'espace cuisine. A l'étage, vous retrouverez un hall de nuit desservant 3 chambres à coucher avec de belles dimensions et une salle de bain avec baignoire, double vasques et water-closet. Ce projet peut-être entièrement personnalisable et modulable en fonction de vos désirs et de votre budget. *Image non contractuelle ** Le prix est à titre indicatif et pourra faire l'objet de modification en fonction de la personnalisation du projet. Pour plus d'informations, Monsieur Mariani (IPI 103.174) reste disponible du lundi au vendredi (durant les heures de bureau) au 0175/23.62.76
Type vastgoed Huis
Prijs 247.753
Aantal badkamers 1