Te koop Bouwperceel, op het zuiden

Beschrijving van   

Vergelijk realty's

Te koop Bouwperceel, op het zuiden

Bouwperceel, op het zuiden Bouwperceel, op het zuiden Bouwperceel, op het zuiden Bouwperceel, op het zuiden Bouwperceel, op het zuiden Bouwperceel, op het zuiden Bouwperceel, op het zuiden Bouwperceel, op het zuiden Bouwperceel, op het zuiden Bouwperceel, op het zuiden
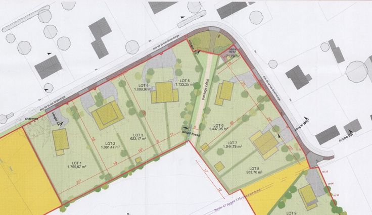
Onze gemeente Wanze ligt in een bevoorrechte omgeving en biedt kavels van 9 tot 18 are, ideaal op het zuiden. Geniet van een onbelemmerd uitzicht en een rustige, doodlopende omgeving. Kies je levensstijl: woningen met een plat dak, 3-front of 4-front, en laat je fantasie de vrije loop met de vrije keuze van de bouwer. Bovendien geniet je van gemakkelijke toegang tot de snelwegen, zodat je je gemakkelijk kunt verplaatsen. Mis deze unieke kans niet om het huis van je dromen te bouwen in een betoverende omgeving! Neem vandaag nog contact met ons op voor meer informatie!
Type vastgoed Grond
Prijs 100.000