Te huur Appartement in hartje Deinze

Beschrijving van   

Vergelijk realty's

Te huur Appartement in hartje Deinze

Appartement in hartje Deinze Appartement in hartje Deinze Appartement in hartje Deinze Appartement in hartje Deinze Appartement in hartje Deinze Appartement in hartje Deinze Appartement in hartje Deinze Appartement in hartje Deinze Appartement in hartje Deinze Appartement in hartje Deinze Appartement in hartje Deinze Appartement in hartje Deinze Appartement in hartje Deinze Appartement in hartje Deinze
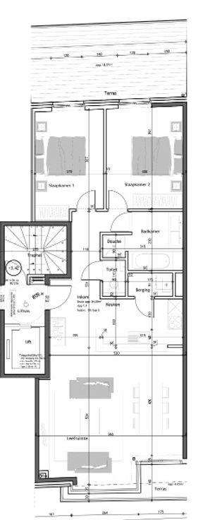
In het hartje van Deinze bevindt zich op de eerste verdieping van Residentie Donsa dit ruim 2 slaapkamerappartement. Winkels, scholen, openbaar vervoer, ... in de onmiddellijke omgeving.   Het appartement omvat: ruime woonkamer met open ingerichte keuken (voorzien van alle toestellen) en aanpalende berging/ wasplaats, badkamer met ligbad, douche en dubbele lavabo in meubel verwerkt, apart toilet en 2 ruime slaapkamers. Het appartement beschikt over 2 terrassen waarvan 1 zéér ruim zuidgericht van 19m². De maandelijkse kosten en lasten bedragen 50,00 EUR. Beschikbaar: 01/01/2025 Renovatieplicht: onbekend
Type vastgoed Appartement
Prijs 790
Aantal slaapkamers 2
Aantal badkamers 1