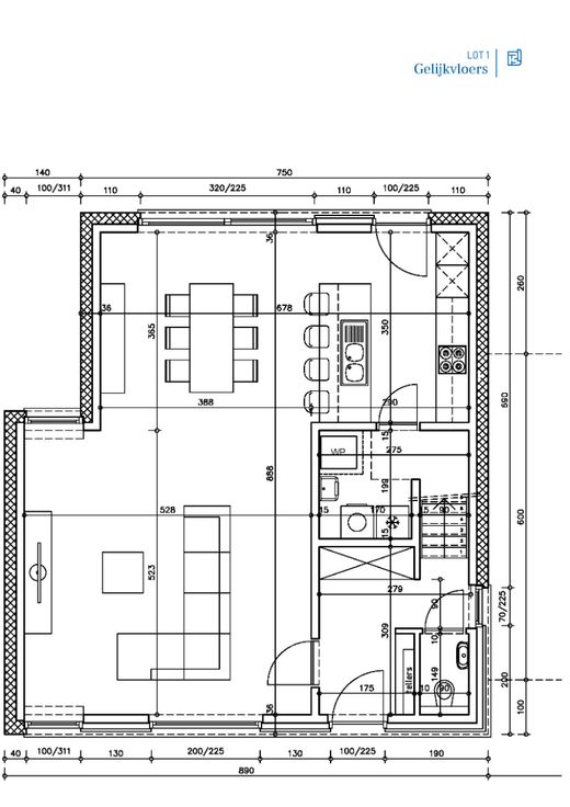
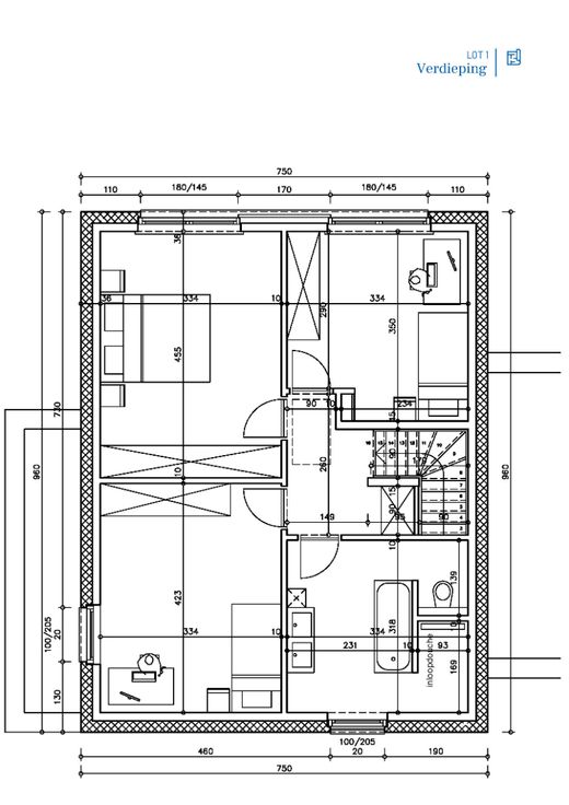
Te koop Melsen (Merelbeke), Gaversesteenweg - Fase 1: Lot 01
Ontdek de mogelijkheden van dit bijzonder perceel met een oppervlakte van 1059m² en een prachtige westelijke oriëntatie. Het unieke uitzicht op het groen aan de achterzijde voegt een exclusief karakter toe aan deze bouwgrond. Ontworpen als onderdeel van een samenhangend geheel met de aangrenzende woning staat dit perceel garant voor strakke lijnen, overvloedig natuurlijk licht en aangename leefruimtes. Hier kunt U Uw droomhuis realiseren waarbij elk detail is doordacht en geoptimaliseerd naar comfort en stijl. De strategische planning zorgt voor een harmonieus geheel, terwijl de westelijke oriëntatie zorgt voor prachtige zonsondergangen en een warme sfeer. Als dit klinkt als de ideale plek voor Uw toekomstige woning, aarzel dan niet om contact met ons op te nemen voor meer informatie en om Uw interesse kenbaar te maken. Bel ons gerust op 0497 588 888 en ontdek hoe dit unieke perceel Uw droomhuis kan worden.
Renovatieplicht: onbekend