Te koop Huis

Beschrijving van   

Vergelijk realty's

Te koop Huis

Huis Huis Huis Huis Huis Huis Huis Huis Huis Huis Huis Huis Huis Huis Huis Huis Huis Huis Huis Huis Huis Huis Huis Huis Huis Huis Huis
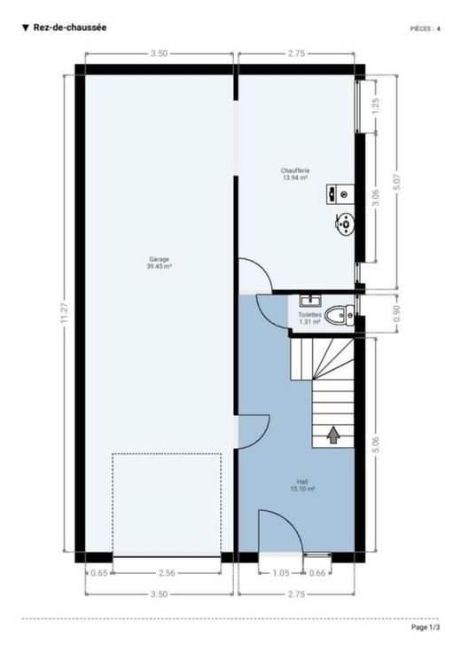
Agréable maison semi-mitoyenne idéalement située dans un quartier calme de Chênée, à proximité de toutes les commodités. Elle se compose, au rez-de-chaussée : d'un hall d'entrée donnant sur un garage couvert, un local chaufferie et un wc. Au premier étage : un vaste salon permettant un accès direct à une terrasse et un jardin de plain-pied, une salle à manger, une cuisine et une salle de bains avec wc. Au deuxième étage : deux grandes chambres accessibles par un hall de nuit. Le bien est actuellement occupé par une locataire et sera libre d'occupation pour le jour de l'acte authentique. RC : 1.065€. Que vous soyez à la recherche d’une habitation confortable ou d’une opportunité d’investissement, cette maison saura répondre à vos attentes. Pconsultables sur demande. Pour de plus amples renseignements et/ou pour planifier une visite, n'hésitez pas à contacter l'étude au 04/361.85.30 ou par mail à l'adresse suivante : hugo.beckers.182659@belnot.be.
Type vastgoed Huis
Prijs 245.000
Bewoonbare opp. 159
Aantal slaapkamers 2
Aantal badkamers 1