Te koop Woning

Beschrijving van   

Vergelijk realty's

Te koop Woning

Woning Woning Woning Woning Woning Woning Woning Woning Woning Woning Woning Woning Woning Woning Woning Woning Woning Woning Woning Woning Woning Woning Woning Woning Woning Woning Woning Woning Woning
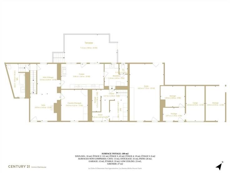
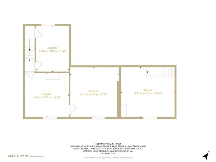
10 minuten van Ciney: Charmante boerderij in Conjoux met bijgebouwen !!! Prijs: €349,000 Ontdek deze authentieke boerderij gelegen in het charmante dorpje Conjoux, in een rustige, bucolische omgeving. Dit karaktervolle pand, met bijgebouwen, is een zeldzame kans voor liefhebbers van oude stenen en landelijk erfgoed. Details woning : Hoofdwoning : Charmante voormalige boerderij, ideaal voor een gezin of renovatieproject. Laat je verbeelding de vrije loop om deze unieke ruimte te renoveren en te personaliseren. Bijgebouwen: Verschillende bijgebouwen, perfect voor uitbreidingsprojecten, workshops, opslag of het creëren van gîtes. De mogelijkheden zijn eindeloos! Modern comfort: De boerderij is voorzien van dubbele beglazing, wat zorgt voor een goede thermische en akoestische isolatie. Een deel van het dak is onlangs vernieuwd, wat zorgt voor gemoedsrust voor de komende jaren. Bovendien is er een regenwatertank, ideaal om de waterkosten te verlagen en het milieu te beschermen. Omgeving en locatie: Deze boerderij ligt in een groene omgeving, geniet van absolute rust en stilte, maar ligt toch dicht bij lokale voorzieningen. De ruime, goed belichte tuin biedt een ononderbroken uitzicht op het omliggende platteland. Met zijn aantrekkelijke prijs van €349.000 is deze boerderij een uitstekende kans voor wie zich wil vestigen in een landelijke omgeving, maar met veel ruimte voor ontwikkeling. Mis deze kans niet om een woning vo
Type vastgoed Huis
Prijs 329.000
Bewoonbare opp. 192
Aantal slaapkamers 2
Aantal badkamers 1