Te huur Ginderale

Beschrijving van   

Vergelijk realty's

Te huur Ginderale

Ginderale Ginderale Ginderale Ginderale Ginderale Ginderale Ginderale Ginderale Ginderale Ginderale Ginderale
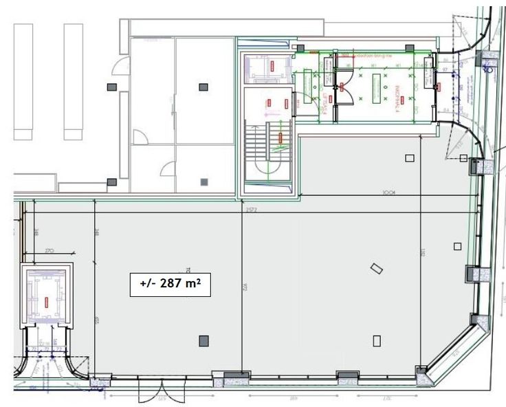
Gemengde ontwikkeling voor winkels, woningen en vrije tijd. Grote zichtbaarheid, op de hoek van de Dermondestraat en de Kattestraat, in het centrum van Merchtem. Goede bereikbaarheid op 15' van Brussel met de auto en het openbaar vervoer.  Provisie kosten: 575 €/maand Oppervlakte: 287 m² Provision charges: 400 €/mois 78 parkeerplaatsen Gemengde omgeving Renovatieplicht: onbekend
Type vastgoed Commercieel
Prijs 2.900
Bewoonbare opp. 287