Te koop Zonnehof_Aalter

Beschrijving van   

Vergelijk realty's

Te koop Zonnehof_Aalter

Zonnehof_Aalter Zonnehof_Aalter Zonnehof_Aalter
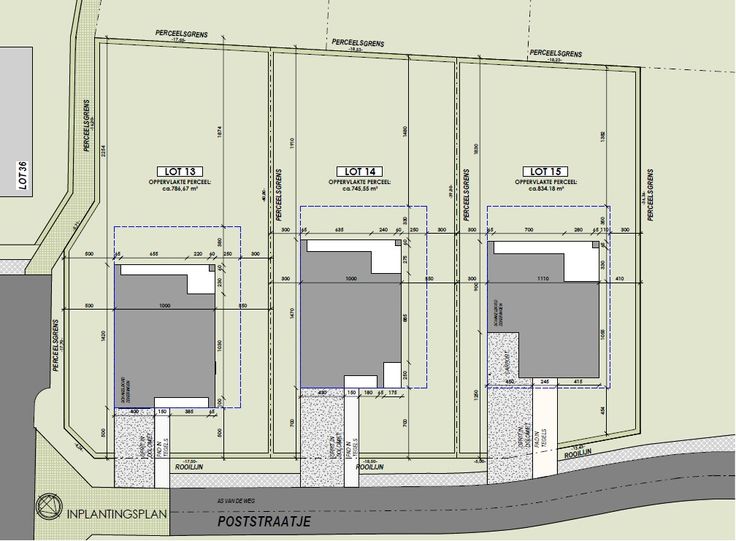
Ontdek deze drie prachtige en moderne nieuwbouwwoningen, gelegen op een idyllische en rustige locatie in Maria-Aalter, ontworpen door het gerenommeerde architectenbureau Berkein. Deze energiezuinige woningen zijn voorzien van de nieuwste technieken, zoals een warmtepomp en zonnepanelen, om aan alle hedendaagse normen te voldoen. Elke woning beschikt over drie ruime slaapkamers en één of twee stijlvolle badkamers. Dankzij de grote raampartijen geniet u van overvloedig natuurlijk licht in elke ruimte. Twee van de drie woningen hebben een inpandige garage, terwijl de derde woning voorzien is van een elegante carport. Bovendien is er de mogelijkheid om de afwerking, zoals de bevloering, in overleg met de koper volledig naar eigen smaak te bepalen. Deze exclusieve woningen bieden het perfecte evenwicht tussen modern comfort en een serene leefomgeving. Grijp nu je kans om jouw droomwoning te realiseren!
Type vastgoed Huis
Prijs Op aanvraag