Te koop Huis

Beschrijving van   

Vergelijk realty's

Te koop Huis

Huis Huis Huis Huis Huis Huis
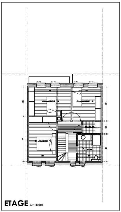
C'est à Ormegnies, commune de la belle ville de Ath, que Maisons Compère vous propose ce terrain à bâtir de 665 m² bénéficiant de 9 mètres de façade pouvant accueillir une superbe construction d'une maison 2 façades Situé à 5km du centre de ATH, non loin de Chièvres et Leuze-en-Hainaut (5 et 11km), l'accès aux grand accès (E42) est quant à lui à 10 km. Nous avons plaisir de vous proposer cette nouvelle construction* se composant au rez-de-chaussée d'un garage une voiture, un hall d'entrée une cuisine et un séjour ouvert. A l'étage, vous retrouverez 3 chambres à coucher avec de belles dimensions, une buanderie ainsi qu'une salle de bain avec douche à l'italienne Ce projet peut entièrement être modulable et personnalisable selon vos envies. Prix terrain + construction vous est proposé pour un montant de 237.246,75 € hors TVA, frais d'architecte et droits d'enregistrement.** *Image non-contractuel **Le prix est à titre indicatif et pourra faire l'objet de modification en fonction des modifications apporter au projet de construction Pour plus d'informations, n'hésitez pas à joindre Mr Mariani au 0475/23.62.76 du lundi au vendredi durant les heures de bureau.
Type vastgoed Huis
Prijs 237.247
Aantal slaapkamers 3
Aantal badkamers 1