Te huur Commerciële panden

Beschrijving van   

Vergelijk realty's

Te huur Commerciële panden

Commerciële panden Commerciële panden
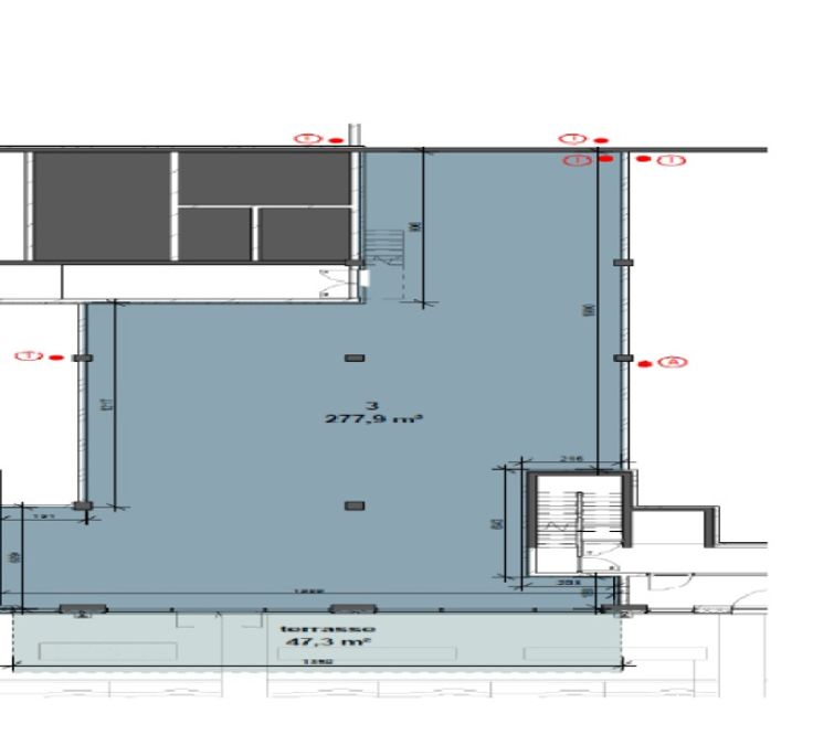
Winkelcentrum in de open lucht met verschillende nationale borden, waaronder : Carrefour Market, IKKS, Picard, Veritas, Hunkemöller, Proximus, Di, Poils & Feathers, Prestige Bedding... 33 winkels verspreid over 10.000M². Oppervlakte gelegen langs de Lasne rivier met 12m lineair, tussen Black'n White en Veritas. Meer info? Bel ons op 02/513.77.00 Renovatieplicht: onbekend
Type vastgoed Commercieel
Prijs 4.616