Te koop Huis

Beschrijving van   

Vergelijk realty's

Te koop Huis

Huis Huis Huis Huis Huis Huis Huis Huis Huis Huis Huis Huis Huis
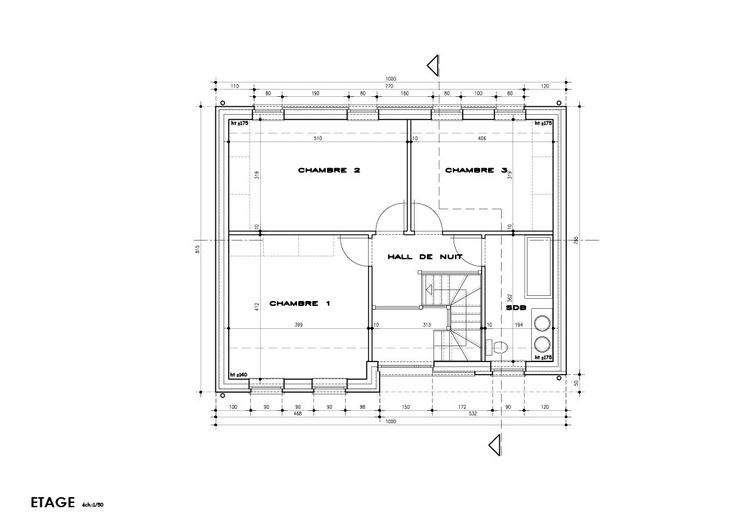
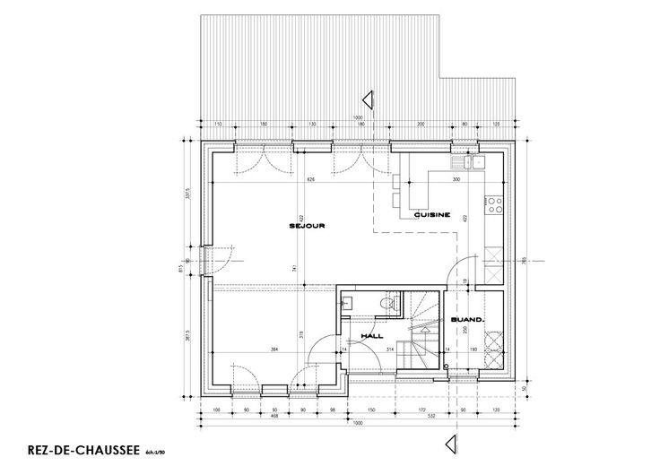
Ceci est une idée de projet, avec une liberté totale de modification pour construire la maison de vos rêves. Nous avons le plaisir de vous présenter ce magnifique terrain à bâtir situé dans un beau village du nom d'Izier à Durbuy. Celui-ci possède une superficie de 1.311 m², d'une façade de 29 mètres ainsi que d'une profondeur de 54 mètres. Sa situation va complétement vous ravir car grâce à son emplacement, vous allez pouvoir avoir accès à un arrêt de bus qui est à moins d'une minute et des restaurants, supermarchés et pompes à essences qui eux, sont situés à mois de 10 minutes. L'accès à la E25, quant à elle, est à moins de 15 minutes afin de pouvoir rejoindre la ville de Liège. Nous vous proposons un projet d'une construction de 150 m² composé comme suit : Au rez-de-chaussée, vous retrouverez un hall d'entrée, un séjour très lumineux avec une cuisine ouverte, une buanderie et un WC. Un hall de nuit, se trouvant à l'étage, vous donnera accès à 3 belles chambres ainsi qu'à une salle de bain. Le projet est entièrement modulable et personnalisable en fonction de la personnalisation du projet. Prix : terrain + projet de construction : 301 753€ HTVA Le prix est donné à titre indicatif et pourra être modifié en fonction des ajustements apportés au projet. Les frais d'architecte sont également à prévoir. Pour plus de renseignements, nous restons disponibles durant les heures de bureau.
Type vastgoed Huis
Prijs 301.753
Bewoonbare opp. 150
Aantal slaapkamers 3
Aantal badkamers 1