Te koop Voormalige watermolen in natuursteen met houten gebinten
Burg-Reuland, Lindenallée 3: Voormalige watermolen gelegen aan een kleine zijarm van de Ulf, een riviertje dat even verderop uitmondt in de Our. Het karaktervolle gebouw in het centrum van Burg-Reuland dateert uit 1746 en heeft prachtige volle natuurstenen muren van ruim 60cm dik en houtsnijwerk in de voorgevel. Zowel het gelijkvloers als de verdiepingen zijn ongeveer 100m² groot. Achteraan de woning is er een zuidgeoriënteerde tuin van ruim 200m². Het gebouw is op de verdieping open tot hoog in de nok, waardoor de schitterende eeuwenoude houten balken en gebinten zichtbaar zijn.
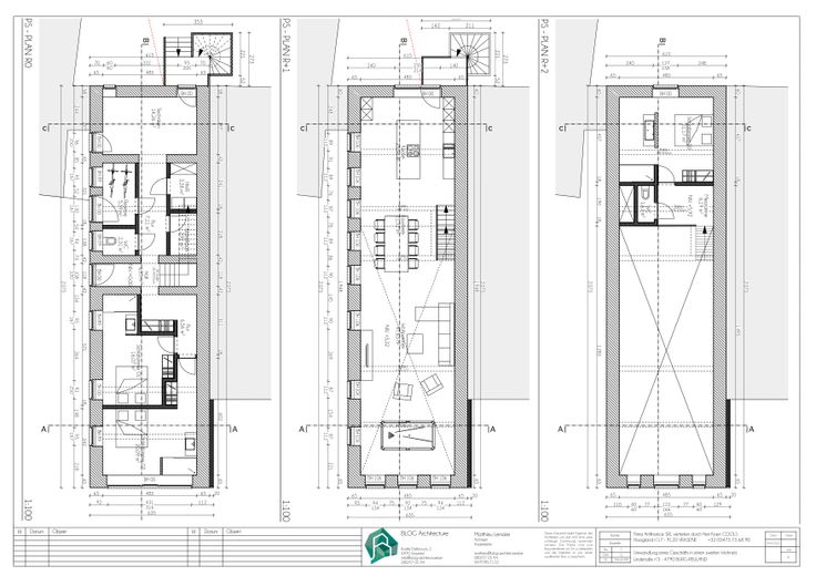
De woning wordt verkocht met goedgekeurde plannen. Samen met een mezzanine onder het dak wordt de bewoonbare oppervlakte ca. 230m²: een zeer grote open ruimte op de bovenverdieping met keuken / eetkamer / living, 3 slaapkamers met elke een douche en wastafel, 2 afzonderlijke toiletten, een ruime (fietsen)berging, een koele berging, een wasplaats en een technische ruimte / saunaruimte. Buiten is er parkeerplaats voorzien voor 2 auto’s. De gedetailleerde plannen zijn op eenvoudige aanvraag beschikbaar. Elektriciteit en water zijn nog aangesloten.
De centrumligging maakt dat een bakker en horecazaken vlakbij zijn.
Burg-Reuland is de meest zuidelijke gemeente van de Oostkantons, vlakbij het drielandenpunt van België, Duitsland en Luxemburg. Het is een paradijs voor wandelaars, fietsers en natuurliefhebbers. De befaamde kasteelruïne uit de 12e eeuw is vlakbij, net als het Ravel-netwerk.