Te koop Huis

Beschrijving van   

Vergelijk realty's

Te koop Huis

Huis Huis Huis Huis
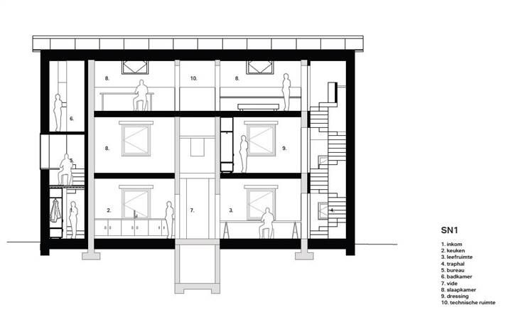
Unieke perceel van 7a 21ca in een agrarisch gebied met topligging. De renders geven een idee wat mogelijk is wanneer de woning volledig afgewerkt is. De prijs is gebaseerd op een berekening door een architect die het ontwerp heeft bedacht. Met de ruimte en rust van het platteland en een uitstekende bereikbaarheid, is dit project ideaal voor wie een nieuw leven wil blazen in een bestaande woning die momenteel gestript is tot op de muur. De details van de berekening kunnen worden bezorgd. . Grijp deze unieke kans en neem contact met ons op voor meer informatie of een bezichtiging. Uiteraard zijn ook andere zaken mogelijk binnen de stedenbouwkundige context. Mail bruno@berthouts.be of bel vandaag nog naar Bruno 0499/ 53 80 77 .
Type vastgoed Huis
Prijs 724.000
Bewoonbare opp. 230
Aantal slaapkamers 4