Te koop Bouwgrond

Beschrijving van   

Vergelijk realty's

Te koop Bouwgrond

Bouwgrond Bouwgrond Bouwgrond Bouwgrond Bouwgrond
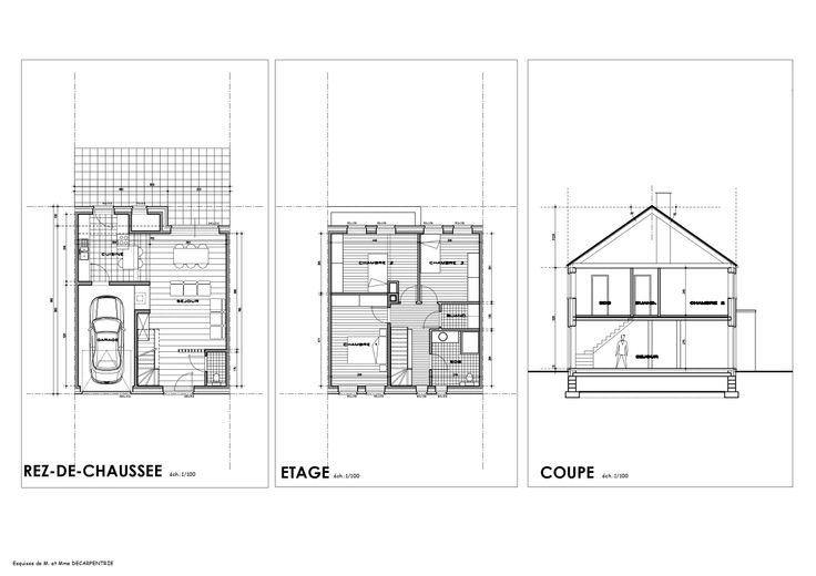
Ceci est une idée de projet, avec une liberté totale de modification pour construire la maison de vos rêves. Nous vous proposons ce projet sur un superbe terrain à bâtir, situé dans un cadre campagnard, dans le charmant village de Jehay. Ce terrain possède une superficie de 765 m², une façade de 23 mètres et une profondeur de 25 mètres. L'emplacement de ce terrain est très avantageux, à seulement une minute d'un arrêt de bus et à moins de 5 minutes des commodités. De plus, l'accès à l'autoroute E42, qui permet de rejoindre Namur et Liège en un rien de temps, est à moins de 5 minutes. Ce terrain vous est proposé avec un projet de construction d'une maison 4 façades. Description du projet proposé, Maison 4 façades de 120m2 : Un rez-de-chaussée incluant un garage pour un véhicule, ainsi qu'un hall d'entrée menant à un séjour lumineux et à une cuisine fonctionnelle. À l'étage, un hall de nuit vous conduira à trois chambres à coucher, une buanderie pratique ainsi qu'une salle de bains élégante. Prix : terrain + projet de construction : 275 869€ HTVA Le prix est donné à titre indicatif et pourra être modifié en fonction des ajustements apportés au projet. Les frais d'architecte sont également à prévoir. Pour plus de renseignements, nous restons disponibles durant les heures de bureau.
Type vastgoed Grond
Prijs 79.900