Te koop Huis

Beschrijving van   

Vergelijk realty's

Te koop Huis

Huis Huis Huis Huis Huis Huis Huis Huis Huis
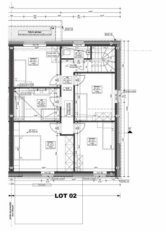
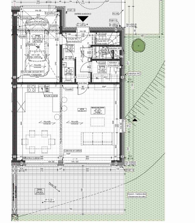
Lot 2 au Clos Poussard. Superbe maison neuve à personnaliser. Cette maison est en vente sur plan, il s'agira d'une des deux dernières opportunités d'acquérir une maison neuve au Clos Poussard, quartier calme et familial entièrement réalisé par notre société et dont le reste des maisons est déjà vendu et occupé. Possibilité de réaliser 3 ou 4 chambres en fonction de vos besoins. Choix du carrelage, des menuiseries intérieures, de la salle de bain , à réaliser par le client. Chez Lamy, vous payez lors de la signature des actes. Cela vous permet d'augmenter votre apport en fonds propres le temps de la construction et de ne pas cumuler un loyer et votre prêt. Régime TVA. Prix: 421.627,63€ TVAC
Type vastgoed Huis
Prijs 353.586