Te koop Huis

Beschrijving van   

Vergelijk realty's

Te koop Huis

Huis Huis Huis Huis Huis Huis Huis Huis Huis
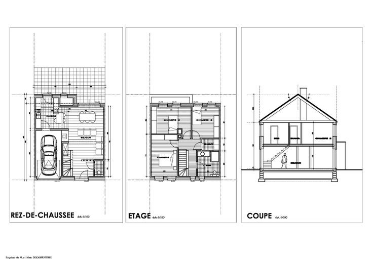
Ceci est une idée de projet, avec une liberté totale de modification pour construire la maison de vos rêves. Maisons Compère a l'honneur de vous dévoiler ce magnifique terrain à bâtir, idéalement situé à Herve. S'étendant sur une superficie généreuse de 645 m², ce bien immobilier se distingue par une façade à rue de 15 mètres et une profondeur de 43 mètres. Son emplacement privilégié, à moins de 1 km de l’autoroute E42, vous séduira à coup sûr. Dans ce cadre paisible, vous profiterez de toutes les commodités nécessaires à un quotidien agréable, telles que des restaurants, des supermarchés variés et des établissements scolaires, le tout dans un rayon de 5 km. Sur ce terrain, nous vous proposons un projet de construction harmonieux d’une superficie de 125 m², aménagé avec soin et goût. Ce modèle se compose d’un hall d’entrée accueillant, agrémenté d’un WC, un séjour lumineux, sublimé par une somptueuse baie vitrée offrant une vue imprenable sur votre futur jardin verdoyant. La cuisine sera fonctionnelle et conviviale. À l’étage, un hall de nuit vous guidera vers trois chambres, une buanderie et une salle de bain élégante, entièrement équipée d’une baignoire et d’une douche. Prix : terrain + projet de construction : 323 825€ HTVA Le prix est donné à titre indicatif et pourra être modifié en fonction des ajustements apportés au projet. Les frais d'architecte sont également à prévoir. Pour plus de renseignements, nous restons disponibles durant les heures de bureau.
Type vastgoed Huis
Prijs 323.855
Bewoonbare opp. 125
Aantal slaapkamers 3
Aantal badkamers 1