Te koop Appartement

Beschrijving van   

Vergelijk realty's

Te koop Appartement

Appartement
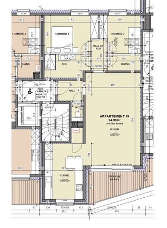
Idéalement situé proche du centre ville et des axes autoroutiers, TREVI Liège vous propose des appartements neufs 2 à 3 chambres de 87m² à 117m² offrant une magnifique vue sur la Meuse. Ces appartements comprennent un lumineux séjour, une cuisine entièrement équipée, deux ou trois chambres, une salle de bain, un WC séparé et une terrasse idéalement orientée. Possibilité d'acquérir un emplacement de parking intérieur ou extérieur et une cave en supplément. Finitions de qualité avec isolation acoustique et thermique performante. Chaudière à condensation au gaz de ville, PEB A ou B. Prix: 274.940-€ et 509.895,-€. Vente sous régime TVA. TAUX A 6% SOUS CONDITIONS !!! Informations disponibles sur simple demande à l'agence au 04/336.35.82 ou sur notre site www.treviliege.be. Informations données à titre indicatives et non contractuelles. Cette annonce ne constitue pas une offre.
Type vastgoed Appartement
Prijs 312.000
Bewoonbare opp. 94
Aantal slaapkamers 2
Aantal badkamers 1