Te koop Handelszaak

Beschrijving van   

Vergelijk realty's

Te koop Handelszaak

Handelszaak
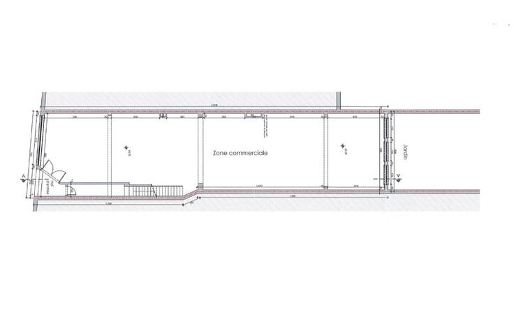
Cap-Sud vous propose ce rez-de-chaussée commercial de 190 m2, idéalement situé à Wavre sur la place Bosch, quartier commercial. Le commerce de +/-190m² avec hall d'entrée, dispose d'une belle vitrine et est actuellement loué depuis 20 ans  (loyer actuel 32.000 euros/an: bail commercial 9ans). À découvrir et visiter sans tarder! Infos & Visites: 010/24.30.14. ou par e-mail : wavre@cap-sud.com
Type vastgoed Commercieel
Prijs 500.000
Bewoonbare opp. 190