Te koop Bouwgrond

Beschrijving van   

Vergelijk realty's

Te koop Bouwgrond

Bouwgrond Bouwgrond Bouwgrond Bouwgrond Bouwgrond
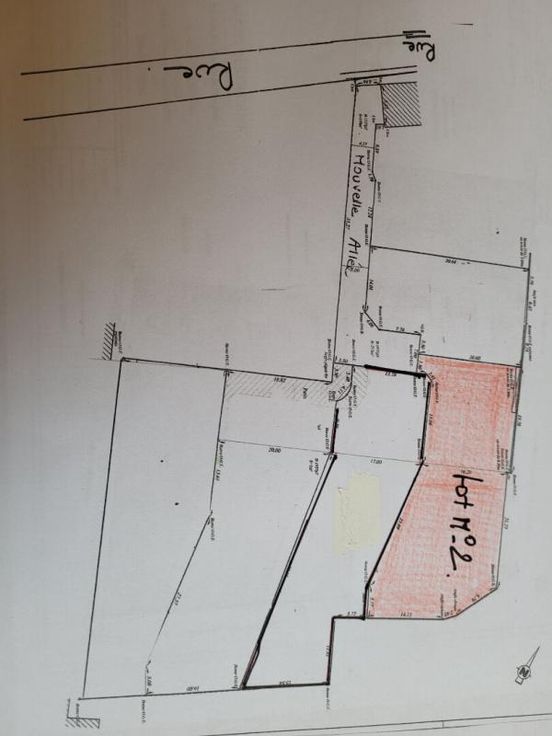
Terrains à bâtir à AUCHY lez Orchies Terrains de près de 900M² dans bel environnement Totalement viabilisé Calme Exposition Sud Second rang Proche des bus vers les collèges et lycées et axes routiers. Auchy Lez Orchies est un village de la Pévèle, très dynamique avec sa crèche, ses écoles primaires privées et publiques, sa médiathèque, son centre médical avec ostéopathe, infirmières, médecins et de nombreux commerces. A 14Km de Lille centre, Auchy est proche de Cappelle en Pévèle, de Templeuve et Mérignies et son golf. Vous apprécierez également Orchies avec sa zone commerciale Europe. Prix: 165 000 euros honoraires inclus dont 5000 euros d'honoraires à la charge de l'acquéreur soit 160 000 euros hors honoraires. Informations sur les risques disponibles sur www.georisques.gouv.fr Pour visiter et vous accompagner dans votre projet, contactez Corinne DEFRANCE, au 0678664329 ou par courriel à c.defrance@proprietes-privees.com Selon l'article L.561.5 du Code Monétaire et Financier, pour l'organisation de la visite, la présentation d'une pièce d'identité vous sera demandée. Cette vente est garantie 12 mois. Cette présente annonce a été rédigée sous la responsabilité éditoriale de Corinne DEFRANCE agissant sous le statut d'agent commercial immatriculé au RSAC Douai 822355244 auprès de la SAS PROPRIETES PRIVEES, au capital de 40 000 euros, ZAC LE CHÊNE FERRÉ - 44 ALLÉE DES CINQ CONTINENTS 44120 VERTOU; SIRET 487 624 777 00040, RCS Nantes. Carte
Type vastgoed Grond
Prijs 165.000