Te huur Authentiek kantoor op 4de verdieping

Beschrijving van   

Vergelijk realty's

Te huur Authentiek kantoor op 4de verdieping

Authentiek kantoor op 4de verdieping Authentiek kantoor op 4de verdieping Authentiek kantoor op 4de verdieping Authentiek kantoor op 4de verdieping Authentiek kantoor op 4de verdieping Authentiek kantoor op 4de verdieping Authentiek kantoor op 4de verdieping Authentiek kantoor op 4de verdieping Authentiek kantoor op 4de verdieping Authentiek kantoor op 4de verdieping Authentiek kantoor op 4de verdieping Authentiek kantoor op 4de verdieping Authentiek kantoor op 4de verdieping Authentiek kantoor op 4de verdieping
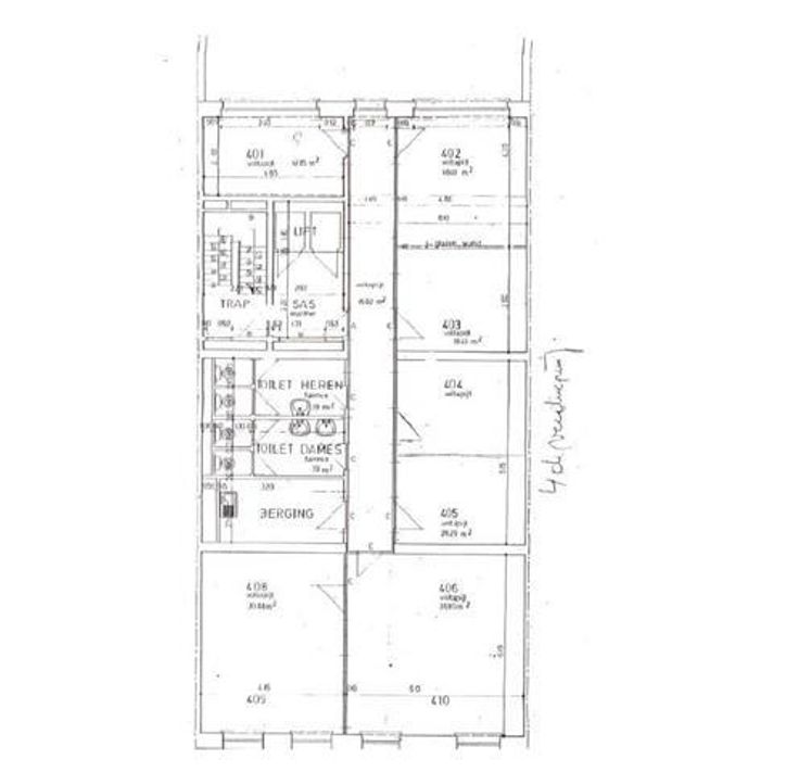
Karaktervolle kantoorruimte in een historisch beschermd monument gelegen langs de Frankrijklei. Deze kantoorlocatie geniet van een uitstekende ligging in de nabijheid van het Antwerpse stadscentrum en is zowel met het openbaar vervoer als met de wagen zeer vlot bereikbaar. Het kantoor op de vierde verdieping van 290m² werd volledig gerenoveerd. Er zijn 2 parkeerplaatsen beschikbaar achteraan het pand aan €110/plaats/maand.
Type vastgoed Commercieel
Prijs 2.417
Bewoonbare opp. 290