Te koop OOSTENDE: EXCLUSIEVE NIEUWBOUWRESIDENTIE O...

Beschrijving van   

Vergelijk realty's

Te koop OOSTENDE: EXCLUSIEVE NIEUWBOUWRESIDENTIE OP 100M V/D ZEE ...

OOSTENDE: EXCLUSIEVE NIEUWBOUWRESIDENTIE OP 100M V/D ZEE ... OOSTENDE: EXCLUSIEVE NIEUWBOUWRESIDENTIE OP 100M V/D ZEE ...
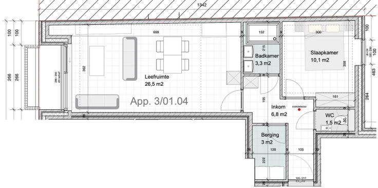
"Residentie Amandine" Dit moderne nieuwbouwproject is gelegen op een fantastische locatie: pal in het centrum van Oostende en stapvoets van de zee, het station, Visserskaai, het casino, culinaire adresjes... Dé ideale uitvalsbasis voor zowel vaste bewoning als tweede verblijf! Deze kleinschalige residentie wordt gekenmerkt door haar tijdloze architectuur en omvat 17 lichtrijke appartementen elk voorzien van een mooi terras! Er zijn appartementen te koop met 1, 2 of 3 slaapkamers. De appartementen kunnen volledig ingericht en afgewerkt worden naar uw smaak! Het gebouw is ook voorzien van een ruime fietsenberging. Kortom: trendy en kwalitatieve appartementen, afgewerkt op uw maat, waar u zorgeloos kan genieten! E-peil 30. Prijs 1-slaapkamer-appartement: vanaf 214.000 EUR (excl. kosten). Prijs 2-slaapkamer-appartement: vanaf 298.000 EUR (excl. kosten). Prijs duplexappartement met 3 slaapkamers: 399.000 EUR (excl. kosten). Verkoop onder BTW-stelsel. Aarzel niet om een afspraak te maken: Immo Sleutel: 050/70 70 70 Renovatieplicht: NOT_APPLICABLE
Type vastgoed Appartement
Prijs 224.000
Bewoonbare opp. 64
Aantal slaapkamers 1
Aantal badkamers 1