Te koop Huis

Beschrijving van   

Vergelijk realty's

Te koop Huis

Huis Huis Huis Huis Huis Huis Huis Huis Huis Huis Huis Huis Huis Huis Huis Huis Huis Huis Huis Huis
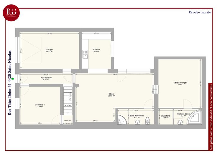
Charmante maison située dans une impasse calme sur la commune de Saint-Nicolas, elle se compose comme suit : - Au REZ: Un hall d'entrée donnant desservant un bureau actuellement utilisé comme chambre, un spacieux séjour ouvert sur la cuisine (équipée), une salle de douche avec WC, une salle à manger et une seconde salle d'eau avec baignoire et accès à la chaufferie. - Au 1er : Deux belles chambres de +ou - 13m² dont une avec un espace dressing, un espace bibliothèque donnant accès au 2ième étage. - Au 2ième deux belles chambres mansardées de 18.69m² et 15.82m². Le bien dispose également d'un garage une voiture avec fosse, des caves, une terrasse et un petit jardin. Chauffage central au mazout, poêle à pellet châssis double vitrage PVC, électricité à revoir partiellement, toiture en bon état (+ou-8ans), pignon récemment isolé, PEB D. RC: 478€ pouvant donné droit à la réduction des droits d'enregistrement. Maison prête à vivre faire offre. Infos et visites: contact@igg.immo ou 0489/84 99 99 Informations données de bonne foie et non-contractuelles.
Type vastgoed Huis
Prijs Op aanvraag
Bewoonbare opp. 160
Aantal slaapkamers 4
Aantal badkamers 1